direct naar inhoud van Toelichting
Plan: 'Vijfhoek 2021'
Status: vastgesteld
Plantype: bestemmingsplan
IMRO-idn: NL.IMRO.0439.BPVIJFHOEK2021-VA01

Toelichting

Hoofdstuk 1 Inleiding

1.1 Aanleiding

Voorliggend bestemmingsplan biedt het juridisch-planologisch kader voor de ontwikkelingen op het terrein dat bekend staat als de 'Vijfhoek' aan de Beemsterburgwal in Purmerend. Het plan omvat de realisatie van 54 wooneenheden in het gebied tussen Kanaalstraat, Kanaalkade, Beemsterburgwal, Wagenbeurs en Gedempte Singelgracht. Het planinitiatief betreft een inbreidingslocatie en realiseert een opvulling van één van de momenteel onbebouwde plekken in het woon/centrumgebied van Purmerend. De inbreiding streeft het front van de Beemsterburgwal en de Kanaalstraat aan te vullen met appartementen. In het midden van het plangebied worden vier bouwblokken gerealiseerd met appartementen. Aan de achtergevel van de nieuwe bouwblokken, het tussenliggende gebied, worden meerdere parkeerplaatsen en groenvoorzieningen gerealiseerd. Deze parkeerplaatsen en groenvoorzieningen worden omsloten door twee loopverbindingen in de gevel van de Beemsterburgwal een verbinding door de Beemstersteeg en in het zuiden van het plangebied de hoofdontsluitingsweg die aansluit op de Kanaalstraat.

Op basis van het vigerende bestemmingsplan 'Slotplein e.o. 1977' is deze ontwikkeling juridisch-planologisch niet toegestaan. Om de inbreiding op deze locatie mogelijk te maken is onderhavig bestemmingsplan opgesteld, waarbij de vigerende bestemmingen 'Centrumdoeleinden III', 'Tuinen en erven' en 'Parkeergarage', worden gewijzigd naar nieuwe toekomstbestendige bestemmingen "Wonen" en 'Verkeer - verblijfsgebied'.

1.2 Ligging plangebied

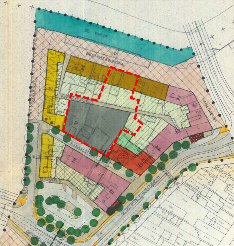
Het plangebied maakt deel uit van het noordelijk deel van de vestingstad Purmerend, welke herkenbaar is aan de puntvormige structuur op de scheiding tussen land en water. Het plangebied grenst in het noorden aan het Noord-Hollands kanaal en de Beemsterringvaart. De Beemsterburgwal en de Kanaalkade zijn de omliggende dragers van het gebied, de Kanaalstraat en Beemstersteeg liggen haaks op de Kanaalkade. Het plangebied ligt tussen deze straten, zoals te zien op figuur 1.

afbeelding "i_NL.IMRO.0439.BPVIJFHOEK2021-VA01_0001.png" afbeelding "i_NL.IMRO.0439.BPVIJFHOEK2021-VA01_0002.jpg"

Figuur 1: Uitsnede ligging plangebied

Het plangebied beslaat meerdere percelen. De gronden zijn kadastraal bekend als Purmerend, sectie C, perceelnummers 271, 2272, 2274, 3079, 3464, 3948, 3949, 3950, 3986, 4176 en 4177. Het plangebied bevindt zich binnen de contouren zoals zichtbaar op figuur 1. Het plangebied bevindt zich op het gesaneerde en onbebouwde gebied en is herkenbaar in de omgeving. De oppervlakte van het plangebied is circa 3600 m2. Het gebied wordt omringd door de bestaande bouw, voornamelijk ten behoeve van woningen en inpandige bedrijven.

1.3 Vigerende plannen

1.3.1 'Slotplein e.o. 1977'

Binnen het plangebied vigeren twee bestemmingsplannen. Het grootste deel van het plangebied valt onder het bestemmingsplan 'Slotplein e.o. 1977', vastgesteld op 19 augustus 1977. De gronden van het plangebied hebben binnen dit bestemmingsplan de enkelbestemmingen 'Centrumdoeleinden III', 'Tuinen en erven' en 'Parkeergarage'.

afbeelding "i_NL.IMRO.0439.BPVIJFHOEK2021-VA01_0003.png"

Figuur 2: Uitsnede plankaart bestemmingsplan 'Slotplein e.o. 1977'

In het noorden van het plangebied vigeert de bestemming 'Centrumdoeleinden, zie figuur 2. De voor 'Centrumdoeleinden' aangewezen gronden zijn, voor zover voor onderhavige analyse relevant, uitsluitend bestemd voor ééngezinshuizen en woningen voor één- en tweepersoonshuishoudens, alsmede kantoren en verzorgende ambachtelijke bedrijven en voor bovenwoningen. Gebouwen zijn binnen het gehele bestemmingsvlak toegestaan met een goothoogte van minimaal 6,5 en maximaal 9 meter. Met uitzondering van wonen en kantoorhouden, zijn alle andere activiteiten uitsluitend toegestaan op de begane grond. Het bedrijfsvloeroppervlak per pand bedraagt maximaal 400m2.

Ten zuiden van bovenstaande bestemming geldt de bestemming 'Tuinen en erven', welke van origine hoort bij de woningen aan de Beemsterburgwal. De aangewezen gronden zijn bestemd voor tuinen en erven, met de bij het hoofdgebouw behorende bouwwerken en open terreinen. Bijgebouwen mogen vrijstaand of aangebouwd worden gesitueerd, met een maximale oppervlakte van 32m2 per bouwperceel en een maximale bouwhoogte voor bedrijfsgebouwen van 4 meter.

De voor 'Parkeergarage' aangewezen gronden, zijn bestemd voor een parkeergarage waarbij het gehele bestemmingsvlak bebouwd mag worden met een maximale bouwhoogte van 3,5 meter.

1.3.2 Vijfhoek en Hazepolder

Naast het bestemmingsplan 'Slotplein e.o. 1977' ligt het plangebied voor een klein gedeelte binnen het bestemmingsplan 'Vijfhoek en Hazepolder', vastgesteld op 30 mei 2013 door de gemeenteraad van Purmerend. De gronden van het plangebied hebben binnen dit bestemmingsplan de enkelbestemming 'Verkeer'.

De voor 'Verkeer' aangewezen gronden zijn bestemd voor wegen, voet - en fietspanden, objecten van beeldende kust en als verblijfsgebied. Gebouwen zijn slechts voor specifieke functies zoals openbaar vervoer voorzieningen toegestaan. De maximale bouwhoogte mag 3 meter bedragen. Voor het bouwen van overige bouwwerken geen gebouwen zijn geldt een maximale bouwhoogte van 15 meter.

1.4 Leeswijzer

Onderhavig bestemmingsplan bestaat uit drie onderdelen, de toelichting, de regels en de verbeelding. De toelichting van het bestemmingsplan bestaat uit zes hoofdstukken. Allereerst hoofdstuk 1 waarin de aanleiding van het planinitiatief wordt beschreven. In hoofdstuk 2 volgt een ruimtelijke analyse van de huidige situatie van het plangebied en een beschrijving van de beoogde ontwikkeling en het bouwplan. Hoofdstuk 3 beschrijft het vigerende beleid voor de planlocatie. In hoofdstuk 4 volgen worden de omgevingsaspecten omschreven en waar nodig aangevuld met locatie gebonden onderzoek. Hoofdstuk 5 bevat de economische en maatschappelijke uitvoerbaarheid van het plan. Tot slot wordt in hoofdstuk 6 een toelichting gegeven op de gekozen planvorm en de gedachten die ten grondslag liggen aan de juridische regelingen zoals deze op de verbeelding en in de regels zijn opgenomen.

Hoofdstuk 2 Projectbeschrijving

2.1 Huidige situatie

Het plangebied bevindt zich in het noorden van de binnenstad van Purmerend, aan de Kanaalkade. Het plangebied functioneert in de huidige situatie voor verschillende functies. Het plangebied bestaat in het noorden uit woningen en inpandige bedrijven. Het midden en zuiden van het plangebied wordt voornamelijk gebruikt voor parkeren. De omgeving van het plangebied kan worden getypeerd als een woonwerkmilieu met ruimte voor woningen en een groot aantal verschillende kleinschalige bedrijven. Op korte afstand van het plangebied bevindt zich de jachthaven van Purmerend.

Het plangebied wordt aan de noord- en westkant begrensd door water, aan de westkant bestaande uit het Noord-Hollands kanaal en de Kanaalkade en aan de noordkant bestaande uit de Beemsterringvaart en de Beemsterburgwal. Aan de kades zijn aanlegsteigers gesitueerd, de beide kades zelf zijn momenteel voornamelijk ingericht en ten behoeve van verkeer en parkeren.

Ten zuiden wordt het plangebied begrensd door de Kanaalstraat, deze straat ligt haaks op de Kanaalkade en verbindt deze met de Gedempte Singelgracht. Deze eenrichtingsstraat bevinden zich voornamelijk woningen en een enkele kleinschalige functie.

Het oosten van het plangebied wordt omgrenst door de achterzijde van de woningen aan de Gedempte Singelgracht en de woningen gelegen in het oosten van de Beemsterburgwal.

afbeelding "i_NL.IMRO.0439.BPVIJFHOEK2021-VA01_0004.png" Figuur 3 Huidige situatie plangebied

afbeelding "i_NL.IMRO.0439.BPVIJFHOEK2021-VA01_0005.png"

Figuur 4 De Beemsterburgwal ten noorden van het plangebied

afbeelding "i_NL.IMRO.0439.BPVIJFHOEK2021-VA01_0006.png"

Figuur 5 Kanaalkade ten oosten van het plangebied

afbeelding "i_NL.IMRO.0439.BPVIJFHOEK2021-VA01_0007.png"

Figuur 6 Kanaalstraat ten zuiden van het plangebied

2.2 Beoogde ontwikkeling

2.2.1 Het bouwplan

In paragraaf 2.1 is de huidige situatie van het plangebied beschreven, waarbij tevens werd ingegaan op de ruimtelijke en functionele situatie. In paragraaf 2.2 wordt een ruimtelijke en functionele analyse van de nieuwe situatie beschreven. Beoogd wordt om aan de Beemsterburgwal, Beemstersteeg en Kanaalstraat in Purmerend 54 wooneenheden te realiseren. De appartementen worden gerealiseerd over meerdere bouwlagen, met een maximum van vijf lagen. De woningen zullen een oppervlakte hebben tussen de 40 m2 en 141 m2 en vallen in de koop- en de huursector voor onder andere starters. Figuren 7 t/m 10 geven een impressie van de beoogde situatie.

Onderstaande figuur 7 geeft schematisch de indeling van het plangebied in de nieuwe situatie weer. Met de ontwikkeling wordt niet alleen het aantal woningen in de gemeente Purmerend vergroot, ook wordt het verbroken gevelaanzicht aan de Beemsterburgwal in ere hersteld. Bij de ontwikkeling is rekening gehouden met het historische aanzicht van de Beemsterburgwal, figuur 8 geeft de beoogde situatie weer aan de Beemsterburgwal.

afbeelding "i_NL.IMRO.0439.BPVIJFHOEK2021-VA01_0008.png"

Figuur 7 Schematische weergave indeling plangebied (Bron: Rietvink Architecten)

Beemsterburgwal

afbeelding "i_NL.IMRO.0439.BPVIJFHOEK2021-VA01_0009.png"

Figuur 8: impressie van de nieuwbouw aan de Beemsterburgwal (bron: Rietvink Architecten)

Beemstersteeg

afbeelding "i_NL.IMRO.0439.BPVIJFHOEK2021-VA01_0010.png"

afbeelding "i_NL.IMRO.0439.BPVIJFHOEK2021-VA01_0011.png"

Figuur 9: Beemstersteeg (bron: Rietvink Architecten)

Kanaalstraat

afbeelding "i_NL.IMRO.0439.BPVIJFHOEK2021-VA01_0012.png"

Figuur 10: impressie van de nieuwbouw aan de Kanaalstraat (bron: Rietvink Architecten)

Hoofdstuk 3 Beleidskader

3.1 Rijksbeleid

3.1.1 Nationale Omgevingsvisie (NOVI)

De Nationale Omgevingsvisie (NOVI), vastgesteld op 11 september 2020, biedt een duurzaam perspectief voor de Nederlandse leefomgeving. De NOVI moet Nederland voorbereiden op de grote uitdagingen die de komende jaren opgepakt moeten worden. Internationale tot lokale ontwikkelingen hebben invloed op de leefomgeving. Veranderende en groeiende steden, de overgang naar een duurzame en circulaire economie en het aanpassen aan de gevolgen van de klimaatverandering zijn voorbeelden en deze opgaven. Dit biedt kansen, maar vraagt wel om zorgvuldige keuzes. Ruimte, zowel boven-, als ondergronds, is een schaars goed.

Het versterken van de omgevingskwaliteit staat centraal in de NOVI. Dat wil zeggen dat alle plannen met oog voor de natuur, gezondheid, milieu en duurzaamheid gemaakt moeten worden. De NOVI maakt bij het maken van keuzes gebruik van drie afwegingsprincipes:

  • 1. Combinaties van functies gaan voor enkelvoudige functies;
  • 2. Kenmerken en identiteit van een gebied staan centraal;
  • 3. Afwentelen wordt voorkomen

Het combineren van al die opgaven vraagt een nieuwe manier van werken. Niet van bovenaf opgelegd, maar in goede samenwerking tussen overheden, bedrijven, kennisinstellingen, maatschappelijke organisaties en burgers. De NOVI biedt een kader, geeft richting en maakt keuzes waar dat kan. Tegelijkertijd is er ruimte voor regionaal maatwerk en gebiedsgerichte uitwerking. De verantwoordelijkheid voor het omgevingsbeleid ligt voor een groot deel bij provincies, gemeenten en waterschappen, inhoudelijke keuzes kunnen in veel gevallen het beste regionaal worden gemaakt. De NOVI moet Nederland houvast bieden om keuzes voor de leefomgeving sneller en beter kunnen maken.

De NOVI is opgesteld als voorbereiding op de Omgevingswet, die naar verwachting in 2022 in werking treedt. Uitgangspunt in de nieuwe aanpak is dat ingrepen in de leefomgeving niet los van elkaar plaatsvinden, maar in samenhang. In de NOVI zijn vier landelijke prioriteiten vastgesteld, aan de hand van deze prioriteiten is een toekomstperspectief voor 2050 vastgesteld en brengt de NOVI de langetermijnvisie in beeld. De vier prioriteiten zijn:

  • Ruimte voor klimaatadaptatie en energietransitie;
  • Duurzaam economisch groeipotentieel;
  • Sterke en gezonde steden en regio's;
  • Toekomstbestendige ontwikkeling van het landelijk gebied

Doorwerking planinitiatief

De ontwikkeling van 54 wooneenheden binnen het bestaand stedelijk gebied van Purmerend is ten opzichte van de Rijksdoelstelling slechts een kleine ontwikkeling. Voorliggend bestemmingsplan draagt niet direct bij aan de doelstelling van het Rijk maar vormt ook geen belemmering voor het behalen van de Rijksdoelstellingen. Geconcludeerd kan worden dat de Nationale Omgevingsvisie geen belemmering vormt voor de vaststelling van voorliggend bestemmingsplan.

3.1.2 AmvB Ruimte (Barro)

Het Besluit algemene regels ruimtelijke ordening (Barro) is op 30 december 2011 in werking getreden. Het Barro stelt regels omtrent de 14 aangewezen nationale belangen die genoemd zijn in de Nationale Omgevingsvisie. De 14 nationale belangen in het Barro zijn:

1. Rijksvaarwegen
2. Mainportontwikkeling Rotterdam
3. Kustfundament
4. Grote rivieren
5. Waddenzee en waddengebied
6. Defensie
7. Hoofdwegen en hoofdspoorwegen
8. Elektriciteitsvoorziening
9. Buisleidingen van nationaal belang voor vervoer van gevaarlijke stoffen
10. Natuurnetwerk Nederland
11. Primaire waterkeringen buiten het kustfundament
12. IJsselmeergebied (uitbreidingsruimte)
13. Erfgoederen van uitzonderlijke universele waarde
14. Ruimtereservering parallelle Kaagbaan

Het Barro omvat alle ruimtelijke Rijksbelangen die juridisch doorwerken op het niveau van bestemmings- en inpassingsplannen. Met het Barro maakt het Rijk proactief duidelijk waar provinciale verordeningen, inpassingsplannen en gemeentelijke bestemmingsplannen aan moeten voldoen, voor zover het gaat om ruimtelijke ontwikkelingen van nationaal belang. Het merendeel van de regels in het Barro legt beperkingen op, daarin is een gradatie te onderkennen. Deze zijn geformuleerd als een 'ja-mits', een 'ja, voor zover', een 'nee-tenzij', een 'nee-als' of een stringente 'nee' bepaling.


Doorwerking planinitiatief

De beoogde bestemmingsplanwijziging valt niet onder één van de nationale belangen zoals vastgelegd in het Barro. Geconcludeerd kan worden dat het Barro geen belemmering vormt voor de vaststelling van voorliggend bestemmingsplan.

3.1.3 Besluit ruimtelijke ordening (Bro)

3.1.3.1 Artikel 3.1.6 Bro

Het Besluit ruimtelijke ordening (Bro) geeft regels waar concrete ruimtelijke projecten aan moeten voldoen. Zo is in het Bro de Ladder voor duurzame verstedelijking verankerd. Het doel van de Ladder voor duurzame verstedelijking is een goede ruimtelijke ordening in de vorm van een optimale benutting van de ruimte in stedelijke gebieden. Met de Ladder wordt er een zorgvuldige afweging en transparante besluitvorming bij alle ruimtelijke en infrastructurele besluiten nagestreefd.

In de praktijk werd de toepassing van de Ladder voor duurzame verstedelijking als lastig ervaren. Daarom is op 1 juli 2017 het Bro gewijzigd, waarmee een nieuwe Laddersystematiek geldt. De derde trede is geschrapt en de eerste twee treden zijn samengevoegd. Hiermee is de 3-trapsstructuur losgelaten. Ook zijn de termen 'actueel' en 'regionaal' geschrapt die waren opgenomen in de voormalige eerste trede. De Ladder voor duurzame verstedelijking bestaat nu uit twee onderdelen. Het tweede lid van artikel 3.1.6. Bro omvat de Ladder voor duurzame verstedelijking. Deze luidt:

"De toelichting bij een bestemmingsplan dat een nieuwe stedelijke ontwikkeling mogelijk maakt, bevat een beschrijving van de behoefte aan die ontwikkeling, en, indien het bestemmingsplan die ontwikkeling mogelijk maakt buiten het bestaand stedelijk gebied, een motivering waarom niet binnen het bestaand stedelijk gebied in die behoefte kan worden voorzien."

Het begrip 'stedelijke ontwikkeling' is nader gespecificeerd in de uitspraak van de Afdeling Bestuursrechtspraak van de Raad van State op 23 april 2014. De Afdeling noemt in de uitspraak de uitgangspunten, die zij hanteert voor de beoordeling of een voorziene ontwikkeling voldoende substantieel is om als stedelijke ontwikkeling te kunnen gelden. Op 28 juni 2017 heeft de Afdeling bestuursrechtspraak van de Raad van State een overzichtsuitspraak gedaan over de Ladder voor duurzame verstedelijking. Ook hier is het begrip 'stedelijke ontwikkeling' nader gespecificeerd. Indien het om een woningbouwlocatie gaat, geldt het volgende uitgangspunt:

"Wanneer een ruimtelijke ontwikkeling voorziet in niet meer dan 11 woningen die gelet op hun onderlinge afstand als één woningbouwlocatie als bedoeld in artikel 1.1.1, eerste lid, Bro, kunnen worden aangemerkt, kan deze ontwikkeling in beginsel niet als een stedelijke ontwikkeling worden aangemerkt."

3.1.3.2 Plangebied

De voorgenomen ontwikkeling betreft de ontwikkeling van 54 wooneenheden, daarmee dient de ontwikkeling conform vaste jurisprudentie aangewezen te worden als een stedelijke ontwikkeling. De Ladder voor duurzame verstedelijking dient derhalve doorlopen te worden waarbij de 'behoefte' onderbouwd moet worden. Omdat het plangebied binnen bestaand stedelijk gebied ligt is een onderbouwing van de 'behoefte' van de ontwikkeling voor voorliggend bestemmingsplan voldoende.

Behoefte woningbouwontwikkeling

De gemeente Purmerend is opgenomen in het Regionaal Actieprogramma Wonen 2016 - 2020 (RAP) van de Stadsregio Amsterdam. Purmerend maakt daarbinnen deel uit van de marktregio Zaanstreek-Waterland. De voorziene woningen passen binnen zowel de kwantitatieve als kwalitatieve woningbehoefte die het RAP voor deze regio aantoont. Met kwantitatieve woningbehoefte wordt het aantal woningen bedoeld, met kwalitatieve woningbehoefte wordt het woonmilieu bedoeld. In het RAP wordt beschreven dat er bovenop de al bestaande harde plancapaciteit voor woningen nog behoefte is aan plancapaciteit in alle prijssegmenten binnen de koop- en huursector. Er is behoefte aan elk type woning en woonmilieu. Een van de speerpunten van het RAP is bovendien om nieuwe plekken voor woningbouw voornamelijk te realiseren in binnenstedelijk gebied.

De beoogde wooneenheden passen ook binnen de doelstelling van de Woonvisie en de Structuurvisie van de gemeente Purmerend. In de Woonvisie wordt benadrukt dat onder andere de vraag van kleine huishoudens in de toekomst zal toenemen, met de nieuwbouw van meer appartementen wordt beoogd te voorzien in de diversiteit van deze vraag op de woningmarkt. De structuurvisie vermeldt dat de binnenstedelijke woonfunctie momenteel beperkt is en er ruimte is voor meer woningen in de binnenstad om de levendigheid na winkelsluitingstijden te bevorderen. Het realiseren van woonruimte in de binnenstad van Purmerend, geschikt voor kleinere huishoudens zoals voorzien met dit bestemmingsplan, past dan ook in voornoemd beleid.

3.1.3.3 Conclusie

De ontwikkeling van de Vijfhoek bestaande uit vier bouwblokken met 54 appartementen is gelegen in het bestaande stedelijk gebied van Purmerend. De te realiseren woningen passen in de behoefte aan uitbreiding van het woningaanbod in stedelijk gebied en is in lijn met het beleid om het aanbod in woningen te vergroten. De woningen voldoen aan de behoefte die gemeente Purmerend heeft vastgesteld in de hiervoor in hoofdstuk 3 beschreven beleidsdocumenten.

Geconcludeerd kan worden dat de ontwikkeling de Ladder voor duurzame verstedelijking positief heeft doorlopen. Het Besluit ruimtelijke ordening en de Ladder voor duurzame verstedelijking vormen geen belemmering voor de vaststelling van voorliggend bestemmingsplan.

3.2 Provinciaal beleid

3.2.1 Omgevingsvisie NH2050

Op 19 november 2018 is de Omgevingsvisie Noord-Holland 2050 vastgesteld. Dit beleidsdocument vervangt de Provinciale structuurvisie Noord-Holland 2040. In de omgevingsvisie staat beschreven hoe de provincie de ambities wil realiseren voor de belangrijkste ontwikkelingen zoals klimaatverandering, de overgang naar duurzame energie, verdere verstedelijking, bereikbaarheid, een gezonde leefomgeving, de economische transitie en natuur en biodiversiteit. De omgevingsvisie NH2050 wil zorgen voor balans tussen economische groei en leefbaarheid. Een economisch vitale provincie draagt bij aan het welzijn, en een leefbare provincie draagt bij aan economische vitaliteit.

De visie laat in algemene zin zien wat de ontwikkelprincipes zijn voor de hele provincie om een hoge leefomgevingskwaliteit te bieden. Deze principes zijn overkoepelend: ze gelden voor de hele provincie. Daarnaast worden er vijf bewegingen geschetst, die laten zien hoe er wordt omgegaan met deze ontwikkelprincipes. Het betreft onderstaande vijf bewegingen:

  • Dynamisch schiereiland. Hierin is het benutten van de unieke ligging van Noord-Holland, te midden van water, leidend.
  • Metropool in ontwikkeling. Hierin wordt beschreven hoe de Metropoolregio Amsterdam steeds meer als één stad functioneert.
  • Sterke kernen, sterke regio's, gaat over de ontwikkeling van centrumgemeenten die de gehele regio waarin ze liggen vitaal houden.
  • Nieuwe energie, benut de economische kansen van de energietransitie.
  • Natuurlijk en vitaal landelijk omgeving, staan het ontwikkelen van natuurwaarden en een economische duurzame agrarische sector centraal.

Doorwerking planinitiatief

Het plangebied valt in de beweging 'Metropool in ontwikkeling'. De metropool in ontwikkeling kenmerkt zich door een grote verscheidenheid aan steden, dorpen en deelregio's, met specifieke identiteiten en kwaliteiten. De vraag naar woningen houdt aan, evenals de ruimtevraag voor recreatie en andere functies. Tegelijkertijd wil de provincie de landschappen in de metropool sparen. De bebouwingsopgave moet dan ook zoveel mogelijk binnen de bestaande kernen plaatsvinden. Wonen en werken worden binnenstedelijk geconcentreerd (transformeren, bundelen, verdichten). Hierbij houdt de provincie oog voor behoud en versterking van de leefbaarheid in bestaande en nieuwe gebieden.

De voorgenomen ontwikkeling draagt met de realisatie van 54 woningen bij aan de bewegingen 'sterke kernen, sterke regio's' en 'metropool in ontwikkeling'. Daarnaast draagt de voorgenomen ontwikkeling bij aan de ambitie van de provincie om woningbouw vooral in en aansluitend op de bestaande verstedelijkte gebieden in te plannen, in overeenstemming met de kwalitatieve behoeftes en trends. Het plangebied is gelegen binnen bestaand stedelijk gebied en er wordt voorzien in zowel een kwalitatieve als kwantitatieve behoefte. Dit blijkt tevens uit de toets aan de beleidsstukken in de volgende paragrafen.

3.2.2 Omgevingsverordening NH2020

De belangrijkste onderwerpen uit de Omgevingsvisie worden verankerd in de nieuwe Omgevingsverordening Noord-Holland. Deze vervangt alle bestaande verordeningen die betrekking hebben op de leefomgeving, zoals de Provinciale Ruimtelijke Verordening, de Provinciale Milieuverordening, de Waterverordeningen en de Wegenverordening. De omgevingsverordening NH2020 is op 16 november 2020 vastgesteld.

In de nieuwe omgevingsverordening worden regels op het gebied van natuur, milieu, mobiliteit, erfgoed, ruimte en water samengevoegd. Hiermee maakt de provincie Noord-Holland ontwikkelingen zoals woningbouw en energietransitie mogelijk, en wordt tegelijkertijd het waardevolle Noord-Hollandse landschap beschermd. Deze verordening stelt algemene regels aan bestemmingsplannen met als doel het veiligstellen van de provinciale belangen.

Beoordeling planinitiatief

De Omgevingsverordening NH2020 geeft onder artikel 6.3 'Nieuwe stedelijke ontwikkeling' aan dat het aantonen van 'nut en noodzaak' (voorheen laddertrede 1) en 'benutten van binnenstedelijke mogelijkheden etc...' (voorheen laddertrede 2), uit de omgevingsverordening zijn gehaald, omdat het al bij wet is geregeld in het Besluit ruimtelijke ordening. In paragraaf 3.1.3 is het Besluit ruimtelijke ordening en de Ladder voor duurzame verstelijking reeds besproken.

Regionale afstemming bij nieuwe stedelijke ontwikkelingen staan in de omgevingsverordening centraal. Voor regionale afstemming heeft de gemeente Purmerend met de stadsregio Amsterdam het ' Regionaal Actieprogramma Wonen 2016 - 2020 (RAP) opgesteld. Onderhavige ontwikkeling voldoet aan de eisen binnen dit actieprogramma.

3.2.3 Provinciale woonvisie 2010-2020

Het provinciale beleid inzake woningbouw is vastgelegd in de Provinciale Woonvisie 2010-2020. Deze woonvisie sluit aan op de structuurvisie en schetst de kaders voor regionaal woonbeleid. Vooral het kwalitatieve aspect van wonen komt in deze visie aan de orde. De speerpunten van dit beleid zijn:

  • 1. verbeteren van de afstemming tussen vraag en aanbod voor alle consumenten, en specifiek voor doelgroepen die minder kansen hebben op het vinden van een geschikte woning;
  • 2. verbeteren van de mate waarin voorzieningen in de woonomgeving aansluiten bij de vraag van bewoners;
  • 3. verbeteren van de duurzaamheid van het woningaanbod en de woonomgeving.

Beoordeling planinitiatief

Het voorgenomen plan betreft, zoals beschreven in paragraaf 2.2.1, de bouw van appartementen van verschillende grootte en prijsklasse. Er worden 54 appartementen met een verschillende oppervlakten gerealiseerd.

Door dit verschil wordt een gevarieerd woningaanbod gerealiseerd waarbij met de realisatie van de 4 kleinste appartementen ook gebouwd wordt voor de doelgroepen die minder kansen hebben op het vinden van een geschikte woning. Hiermee wordt voldaan aan het eerste speerpunt uit de Provinciale Woonvisie.

Zoals reeds benoemd in 3.1.3.2 (en nader uitgelegd in paragraaf 3.4.1) is één van de doelstelling van de structuurvisie van de gemeente de binnenstedelijke woonfunctie te vergroten om zo ook de levendigheid van de binnenstad te vergroten. Met de realisatie van nieuwe wooneenheden zal vraag & aanbod tussen het centrum van Purmerend en het plangebied versterkt worden.

De nieuwe woningen zullen in de toekomst aangesloten worden op de stadsverwarming van de Purmerend. Het realiseren van deze aansluiting zal nog enkele jaren in beslag nemen, derhalve worden de woningen in de tussentijd verwarmt met tijdelijke gasaansluitingen. Zodra het stadverwarmingsnet gereed is zullen de woningen van het gas gaan en aangesloten worden op deze duurzame vorm van warmtevoorziening.

3.3 Regionaal beleid

3.3.1 Regiovisie Waterland 2040 (Vitaal met Karakter)

Voor de lange termijn heeft de regio een ontwikkelingskader tot 2040 opgesteld, de Regiovisie Waterland 2040. In deze visie staat behoud en zo mogelijk versterking van het kenmerkende authentieke karakter van de regio Waterland voorop, maar wel met de noodzakelijk sociaaleconomische en infrastructurele impulsen om de kernen vitaal te houden en het gebied binnen de Metropoolregio Amsterdam bereikbaar te maken. Naast maatregelen om het authentieke karakter van het landelijk gebied te bewaren, vergt dat op vele locaties een forse inspanning in de kwaliteit van de leefomgeving, selectieve uitbreiding voor noodzakelijke sociaaleconomische ontwikkelingen en duurzame oplossingen voor beheer en terugdringing van het woon-werkverkeer. Op die manier ontstaat een duurzame vitale regio met een herkenbaar eigen karakter.

Doorwerking planinitiatief

Onderhavige ontwikkeling past goed in het beleid zoals weergegeven in de Regiovisie. Het bepaalde in dit bestemmingsplan is niet strijdig met dit beleid. De Regiovisie Waterland 2040 vormt geen belemmering voor de vaststelling van voorliggend bestemmingsplan.

3.3.2 Metropoolregio Amsterdam

Purmerend maakt onderdeel uit van Metropoolregio Amsterdam (MRA). Dit is een samenwerkingsverband van de provincies Noord-Holland en Flevoland, 32 gemeenten en de Vervoerregio Amsterdam. De MRA behoort tot de Europese top vijf van economisch sterke regio's. De rode draad van de samenwerking is het behouden en versterken van die internationale concurrentiepositie. De door de partners geformuleerde hoofdopgaven zijn (thematisch) neergelegd in de 'Gebiedsagenda 2013' en richten zich m.n. op het optimaliseren van het fysieke vestigingsklimaat (economie), het tijdig voorzien in kwantitatieve en kwalitatieve woningbouwbehoefte in 2040 (verstedelijking) en het op orde brengen en houden van een goed functionerend mobiliteitsnetwerk (bereikbaarheid). De agenda levert een 'voorraadkamer' op voor de besluitvorming over programma's en projecten in het Bestuurlijk Overleg Meerjarenprogramma Infrastructuur, Ruimte en Transport (BO-MIRT). De agenda richt zich voornamelijk op het verbeteren van de infrastructuur en het milieu. De agenda verzet zich niet tegen het realiseren van woningbouw met diverse maatschappelijke zorg(gerelateerde) voorzieningen in de plint. De agenda bevestigt bovendien dat er binnen de regio Waterland, waar Purmerend onder valt, een aanzienlijk aantal nieuwe woningen dient te worden gerealiseerd. De te realiseren woningen passen dan ook goed in het beleid van de MRA.

De MRA heeft een eigen langere termijnvisie in de vorm van het Ontwikkelingsbeeld 2040 uit 2007. De MRA wil een internationaal concurrerende regio zijn met compacte steden in een voor recreanten aantrekkelijk landschap en met een infrastructureel netwerk dat de kernen met elkaar, het landschap en de rest van de wereld verbindt. De regio zet in op woningbouw, de creatieve industrie, de maakindustrie en de circulaire economie, wil een omslag naar duurzame energiebronnen en koestert grote bedrijven als het Havenbedrijf Amsterdam. In 2014 verscheen een overzicht van accentverschuivingen ten opzichte van dit Ontwikkelingsbeeld: Doorbouwen op het fundament. Op basis van nieuwe trends en inzichten focust de MRA o.a. op meer stedelijke verdichting, intensivering van de transformatieopgave, beter benutten van OV-knooppunten en - naast bescherming - een betere benutting van het landschap.

Om dit te bereiken is voor de korte termijn een Ruimtelijk-economische Actie-Agenda 2016-2020 opgesteld, met een doorkijk naar de komende tien jaar.

Woonagenda Zaanstreek-Waterland 2017-2020

De MRA bestaat uit zeven zogenaamde deelregio's, waaronder Zaanstreek-Waterland, waar Purmerend deel van uitmaakt. Zaanstreek-Waterland heeft een eigen Woonagenda: Samen optrekken (2017). De focus ligt op de jaren 2017-2020, met een doorkijk naar 2025 en 2035. Hierin kiezen de gemeenten een gezamenlijke koers die recht doet aan lokale omstandigheden, gebaseerd is op inzicht in de (toekomstige) woningmarkt in Zaanstreek-Waterland en die rekening houdt met en een eigen inkleuring geeft aan de samenwerkingsafspraken met de andere deelregio's in de MRA. Zaanstreek-Waterland wil haar eigen identiteit kracht bijzetten door de reeds grote diversiteit aan woonmilieus nog verder te versterken. Ze wil zowel de eigen als de regionale woningvraag bedienen en streeft naar een verder gedifferentieerde en toekomstbestendige woningvoorraad voor alle doelgroepen. Doelen zijn: het opvoeren van de woningproductie, waarbij de focus ligt op toevoeging van die kwaliteiten aan woonmilieus, woningtypen en prijsklassen die benodigd zijn en bijdragen aan de gewenste variatie, het behoud van de betaalbare (sociale huur)voorraad, een betere verdeling van en doorstroming binnen die voorraad en verduurzaming van de gehele bestaande voorraad, zowel op het gebied van energie als levensloopbestendigheid.

Doorwerking planinitiatief

Onderhavige ontwikkeling past goed in het beleid van de MRA en de Woonagenda Zaanstreek-Waterland 2017-2020. Het bepaalde in dit bestemmingsplan is niet strijdig met dit beleid en vormt derhalve ook geen belemmering voor de vaststelling van voorliggend bestemmingsplan.

3.3.3 Regionaal Actieprogramma Wonen 2016 t/m 2020

Het Regionaal Actieprogramma Wonen 2016 t/m 2020 Amstelland-Meerlanden, Amsterdam en Zaanstreek-Waterland is in juli 2017 door de Provincie Noord-Holland goedgekeurd. De druk op de woningmarkt is in deze regio groot en in alle segmenten doen zich tekorten voor. Uit de prognoses blijkt dat ook in de toekomst de behoefte in alle segmenten nog verder zal toenemen. De voorkeur ligt bij woningbouw op binnenstedelijke ontwikkeling.

Voor de regio als geheel wordt de groei van de woningbehoefte in de periode 2017-2027 geraamd op ca. 79.500 woningen. Hier staat een harde plancapaciteit van bijna 62.500 woningen tegenover, waardoor een tekort aan harde plannen van 17.000 woningen bestaat, zie onderstaande tabel.

afbeelding "i_NL.IMRO.0439.BPVIJFHOEK2021-VA01_0013.png"

Tabel 3.1: woningbehoefte versus plancapaciteit in de deelregio's uitgedrukt in woningen

Voor de regio Zaanstreek-Waterland als geheel wordt de groei van de woningbehoefte in de periode 2017-2027 geraamd op ca. 61.120 woningen. Hier staat een harde plancapaciteit van 50.230 woningen tegenover, waardoor een tekort aan harde plannen van circa 10.890 woningen bestaat. Daarnaast zien de gemeenten in Zaanstreek-Waterland duurzaamheid als essentieel onderdeel van de opgaven op het gebied van wonen, maar ook van economie, toerisme en mobiliteit. Voor wonen geldt dat gemeenten inzetten op verduurzaming van de woningvoorraad in zowel nieuwbouw als bestaande bouw, in zowel de huur- als de koopsector.

In Zaanstreek-Waterland geldt:

  • tekorten in vrijwel alle marktsegmenten;
  • met name tekort aan betaalbare huurwoningen en koopwoningen in het middel dure en betaalbare segment;
  • een iets groter aanbod stedelijke appartementen en dure huurwoningen dan vraag.

Voor appartementen zijn vraag en plancapaciteit nagenoeg in evenwicht. Binnen dit segment is de lichte overprogrammering aan stedelijke appartementen een gevolg van de grote druk op de woningmarkt in combinatie met de wens om de woningbouw zoveel mogelijk binnenstedelijk uit te voeren. In verband met de locatiekenmerken kunnen niet altijd grondgeboden woningen worden uitgevoerd; om toch te voldoen aan de vraag van woningzoekenden vindt er dan verdichting plaats, bijvoorbeeld rond haltes van hoogwaardig openbaar vervoer. Als de voorkeursvariant van de woonwens niet haalbaar is, passen vele woningzoekenden in een gebied met grote marktdruk hun wensen aan, en kiezen voor een ander woningtype dan wel een andere woonomgeving. Het probleem van teveel dure huur wordt binnen de aanpak middensegment huur wel bestreden.

Meer aanbod creëren in het middensegment huur is een belangrijke opgave uit de samenwerkingsagenda. Dit markt segment is zeer beperkt aanwezig, terwijl het in delen van de RAP-regio erg belangrijk is voor het functioneren van de woningmarkt. Bijvoorbeeld om starters op de woningmarkt een plek te geven en als alternatief in de duurdere delen van de regio, waar het gat tussen sociale huur en de koopsector erg groot is. Corporaties kunnen door beperking van hun takenpakket, met de komst van de Woningwet veel minder dan voorheen nieuwbouw realiseren in het middensegment. Het is aan de samenwerkende gemeenten nieuwe partijen te vinden die bereid zijn te investeren in het middensegment.

Zaanstreek-Waterland wil de diversiteit van de woningvoorraad vergroten. Dat betekent onder meer tegemoet komen aan de vraag naar middeldure huurwoningen, een segment dat nog grotendeels ontbreekt. De behoefte aan middeldure huurwoningen is becijferd op 800 woningen tot 2025. Door het aantrekken van de woningmarkt ervaren Zaanstad en Purmerend potentie in dit segment en ook Landsmeer, Waterland en Edam-Volendam zien marktkansen. Middeldure huur vervult in deze regio met name een functie voor huishoudens die met spoed een woning nodig hebben en voor mensen die niet kunnen of willen kopen, bijvoorbeeld senioren die hun koopwoning willen verkopen.

Doorwerking planinitiatief

De voorgenomen ontwikkeling voorziet in de realisatie van woningen op een binnenstedelijke locatie. In de regio Zaanstreek-Waterland bestaat een tekort van circa 10.890 woningen. De voorgenomen ontwikkeling voorziet met de realisatie van 54 appartementen in de vrije sector (middelduur tot duur) in een bijdrage aan de woningbehoefte in de regio. Geconcludeerd kan worden dat het regionaal actieprogramma wonen en de gezamenlijke afspraken in de regio Zaanstreek-Waterland geen belemmering vormt voor de vaststelling van voorliggend bestemmingsplan.

3.4 Gemeentelijk beleid

3.4.1 Structuurvisie Purmerend 2005-2020 actualisatie 2013

In 2006 heeft de gemeenteraad de Structuurvisie 2005-2020 vastgesteld. Dit document bevat een toetsingskader voor gewenste en bestaande ruimtelijke ontwikkelingen binnen de gemeente. De structuurvisie bevat ambities die leidend zijn bij de ontwikkeling van de stad Purmerend tot 2020.

  • 1. Purmerend is het centrum van Waterland: Uiteen wordt gezet dat Purmerend wil investeren in haar functies waarin zij een regionale rol heeft, om de positie als centrum van Waterland te behouden. De manier waarop Purmerend dit wil bereiken is door te investeren in een veelzijdig, herkenbaar en toegankelijk centrum met kwalitatief hoogwaardige openbare ruimte en door te streven naar een hoog niveau van voorzieningen in zowel het centrum als in andere delen van de stad.
  • 2. Purmerend werkt aan een evenwichtigere woon-werkbalans. In de structuurvisie wordt beschreven dat Purmerend voor de werkgelegenheid sterk afhankelijk is van Amsterdam. Dit is een kwetsbaar punt. Belangrijk is daarom dat Purmerend haar economische punten verder ontwikkelt. Dit is onder meer van belang voor jongeren die in Purmerend zijn geboren en zich nu op de arbeidsmarkt gaan begeven, omdat zij meer geneigd zullen zijn om in Purmerend te werken.
  • 3. Purmerend versterkt haar verbindingen in groen, blauw en grijs. Gesteld wordt dat de kwaliteit van de ligging van de stad veel beter benut kan worden. De kwaliteiten van het buitengebied zijn in de wijken ruimschoots aanwezig, maar zijn op het niveau van de stad te weinig herkenbaar en andersom worden de kwaliteiten van de stad daarbuiten nauwelijks (h)erkend. Uiteen wordt gezet dat de aantrekkelijke ligging van Purmerend veel meer benut kan worden om de kwaliteit van het wonen in de stad te verhogen, om de kansen voor toerisme te vergroten en om het beeldmerk van de stad neer te zetten. Tevens wordt gesteld dat het versterken van de stedelijke structuren kan helpen mensen zich meer verbonden te laten voelen met hun stad en om een betere oriëntatie te krijgen op de stad en haar omgeving.
  • 4. Purmerend kiest voor bloei in plaats van groei. Purmerend heeft zich decennia lang gericht op groei. Nu moet de omslag komen naar het investeren in identiteit en kwaliteit. Beschreven wordt dat het doel niet langer is om woningen te bouwen en nieuwe wijken te ontwikkelen, maar toe te werken naar een complete stad die op basis van kwaliteit de concurrentie aan kan met de steden in de omgeving en die toegesneden is op de demografische veranderingen.

In 2013 is de strategische plankaart (in de structuurvisie afgebeeld op pagina 72) geactualiseerd. Op deze kaart zijn de belangrijkste doelstellingen voor Purmerend voor de lange termijn samengebracht. De kaart wordt in samenhang gelezen met de oorspronkelijke structuurvisie uit 2006.

Doorwerking planinitiatief

Op de strategische plankaart is cluster 1, waarbinnen het plangebied ligt, beperkt tot de binnenstad ten oosten van het Noordhollands Kanaal. De met de structuurvisie uit 2006 ingeslagen weg van 'een grotere binnenstad die meer biedt' is losgelaten. Het detailhandelsbeleid is herzien en voor cluster 1 is de 'detailhandelsvisie binnenstad Purmerend' vastgesteld. Het gebied van dit cluster beslaat nu uitsluitend de historische binnenstad. Het thema 'consumeren & beleven' is van toepassing op cluster 1 ten behoeve van aantrekkelijke centrumvoorzieningen. De binnenstad kan verder een invulling krijgen onder de noemer 'Bruisend Centrum' en daarmee worden uitgebouwd tot 'de huiskamer van Purmerend'.

Onderhavig planinitiatief betreft de bestemmingswijziging van onder andere 'Centrumdoeleinden III ' naar 'Wonen' om zo de ontwikkeling van 54 wooneenheden mogelijk te maken. Door de extra mogelijkheden die nu worden toegevoegd aan het plangebied, draagt onderhavig bestemmingsplan bij aan het opbouwen van een bruisend centrum in Purmerend waar ruimte is voor consumeren en beleven. De beoogde ontwikkeling past daarmee binnen de Structuurvisie Purmerend 2005-2020 actualisatie 2013.

afbeelding "i_NL.IMRO.0439.BPVIJFHOEK2021-VA01_0014.png"

Figuur 10 Strategische plankaart structuurvisie 2005 - 2020

3.4.2 Woonvisie 2017-2022 Purmerend

In de Woonvisie Purmerend 2017-2022 heeft de gemeente haar visie tot 2022 op het gebied van wonen geformuleerd. Overkoepelend is de ambitie voor de gemeente Purmerend, 'een prettig huis dat past bij de levensfase in een prettige omgeving'. De gemeente wil de woningvraag van de eigen inwoners goed kunnen bedienen, een prettige woonstad blijven, voldoende woningen bouwen om de bevolkingsomvang op peil te houden en voldoende draagvlak te behouden voor het voorzieningen niveau. Purmerend wil verder bijdragen aan de woningvraag in de regio Amsterdam.

In een achttal speerpunten heeft Purmerend deze ambitie verder uitgewerkt, waaronder ook de ambitie om tot 2040 10.000 extra woningen te bouwen. Dit om tevens de kwaliteit van de stad te versterken door vergroting van de differentiatie van het aanbod en van verschillende woonmilieus en de woningvoorraad meer passend te maken voor de toekomstige bevolkingssamenstelling.

De voorgenomen stedelijke ontwikkeling betreft de realisatie van 54 appartementen in verschillende segmenten van de woningenmarkt. Hiermee voorziet het initiatief in verschillende ambities van de woonvisie. De ontwikkeling vindt plaats in de binnenstad en voegt aansprekende en diverse woningen toe aan de huidige woningvoorraad. Hiermee past de voorgenomen ontwikkeling in dit beleid.

3.4.2.1 30 - 30 - 40 regel woningbouwontwikkelingen

In het coalitieprogramma 2018-2022 ('Samen werken aan de stad') heeft het college het voornemen uitgesproken om een norm te hanteren in woningbouwcategorieën. Hierbij wordt de zogenaamde 30-30-40-regel gehanteerd. Dit houdt in dat van alle te bouwen woningen in Purmerend, minimaal 30% sociale huur moet zijn, 30% doorstroomwoningen (middeldure huur en betaalbare koop) en 40% vrije keuze. Deze regel wordt toegepast bij de wat grotere woningbouwprojecten.

Voor voorliggend bestemmingsplan is met de initiatiefnemer een anterieure overeenkomst afgesloten waarin deze afspraken privaat rechtelijk zijn vastgelegd. Met het afsluiten van de anterieure overeenkomst wordt voldaan aan de 30 - 30 - 40 regel. De voorgenomen ontwikkeling past binnen het vastgestelde coalitieprogramma 'Samen werken aan de stad'.


3.4.3 Ruimte voor Purmerend (omgevingsagenda voor Purmerend richting 2040)

Het beleidsstuk 'Ruimte voor Purmerend (omgevingsagenda voor Purmerend richting 2040) is een dynamische agenda die naast politiek-bestuurlijke focus vooral duidelijkheid biedt over de ambities van de gemeente Purmerend. Purmerend wordt hierin neergezet als compacte woonstad met sterke OV-verbindingen naar de hoofdstad maar ook uitstekende fietsverbindingen naar de omgeving en buitengebied. Een stad waarin de wijken een zelfvoorzienend karakter hebben op het gebied van voorzieningen.

Aan bovenstaande beschrijving kunnen troeven en waardevolle aspecten worden toegevoegd waaruit ambities voortvloeien. De nabijheid van Amsterdam, het voorzieningenaanbod, het OV-netwerk en de betaalbare woningvoorraad zijn bekende troeven. Waardevolle aspecten zijn het dorpse karakter, de tevredenheidsstabiliteit en het brede scala en diversiteit van voorzieningen, omgeving en activiteiten. De ambities die hieruit zijn geformuleerd (samengevat):

  • De urgentie en noodzaak om verder te bouwen aan woongelegenheid in een grotere diversiteit voor zowel huidige als toekomstige generaties; een flink deel van de opgave dient plaats te vinden in het bestaande stedelijke gebied.
  • Regionale functie van 'de zorg' waarborgen. De compacte en consequente wijkstructuur van Purmerend leent zich al goed voor dagelijkse voorzieningen en zorg (ziekenhuis, EHBO, verpleeghuis, opvang o.m.), voldoende aangepaste huisvesting is ook aanwezig. De ambitie is om deze regionale functie met het oog op de toekomst (vraag naar zorg) te behouden en versterken.
  • Versterking van de toeristische sector door Purmerend als pleisterplaats en verblijfsstad op de kaart te zetten voor iedereen die Laag Holland bezoekt.


Om vorm te geven aan de groei van Purmerend worden scenario's bekeken. Gelet op de ladder voor duurzame verstedelijking ligt intensivering van (vastgoed in) de bestaande stad als eerste mogelijkheid voor de hand en vervolgens wordt het verstedelijken van de randen nader als mogelijkheid bezien.


Doorwerking planinitiatief

Voorliggend bestemmingsplan voorziet in het ontwikkelen van woongelegenheid in bestaand stedelijk gebied. Gezien de woningbehoefte van circa 10.000 woningen in Purmerend, als onderdeel van de woningbouwtaakstelling van de van de Metropoolregio Amsterdam, is er behoefte aan de 54 woningen die in het plangebied worden gerealiseerd. Het voornemen is daarmee in overeenstemming met de 'Agenda: Purmerend, koers naar 2040'.

3.4.4 Visie Leefbare Stad 2040

Gemeente Purmerend heeft tot 2040 een bouwopgave van 10.000 woningen. De stad gaat verdichten, en de druk op de openbare ruimte wordt groter. Bovengronds doordat meer mensen gebruik gaan maken van dezelfde openbare ruimte. Ondergronds omdat er uitbreiding van kabels, leidingen, riolering en stadsverwarming nodig is. Het groen in de stad staat onder druk. Daarnaast treedt er klimaatverandering op. De kans op wateroverlast, hittestress en droogte in de stad wordt groter. Dit vraagt om een andere inrichting van het openbare gebied, gebouwen en de particuliere terreinen. Op 26 maart 2020 is de Visie Leefbare Stad 2040 (Steen en groen in balans voor een leefbaar en aantrekkelijk Purmerend) door de raad vastgesteld. In deze visie worden de kansen benoemd hoe steen en groen in balans blijven voor een leefbare stad. Het is een overkoepelend plan dat een stip op de horizon richting 2040 weer geeft, kansen benoemd en vier uitwerkingen kent:

  • 1. Bomenplan
  • 2. Klimaatadaptatieplan
  • 3. Parkenplan
  • 4. een uitwerking voor Natuurinclusief bouwen

Met de vaststelling van de visie moet bij elke ontwikkeling in de stad onderbouwd moeten worden wat er is gedaan op het gebied van goede bomen, klimaatadaptatie en natuurinclusief bouwen. In stukken die naar het college en de gemeenteraad gaan zal hier nadrukkelijk aandacht aan moeten worden besteed. De gemeentelijke groenbeheerder, ecoloog en adviseur klimaatadaptie kunnen hierin advies geven.

Doorwerking planinitiatief

Voorliggend plan voorziet in de noodzakelijke woningbouwontwikkeling binnen de gemeente Purmerend binnen bestaand stedelijk gebied. Het plangebied leent zich als binnenstedelijke ontwikkellocatie voor woningbouwontwikkeling. In de bestaande situatie is het plangebied volledig verhard, met de realisatie van enkele tuinen en groenvoorzieningen zal deze situatie (zij het nihil) iets verbeteren. Ook zullen de parkeerplaatsen groen uitgevoerd worden om daarmee een bijdrage te leveren aan de klimaatadaptatie. Om het plangebied en de nabije omgeving in de toekomst aantrekkelijk (conform de doelstelling natuurinclusief bouwen) te maken voor verschillende diersoorten worden er door initiatiefnemer en de architect voorzieningen opgenomen. Deze voorzieningen voor o.a. gierzwaluwen, vleermuizen en huismussen zullen in de bouwwerken worden geïntegreerd Het plan vormt in ieder geval geen belemmering voor de doelstelling die in de Visie Leefbare Stad 2040 zijn geformuleerd.

3.4.5 Verkeersplan Purmerend 2040

Purmerend heeft een grote woningbouwopgave en moet tot 2040 10.000 woningen bouwen. Zonder verdere actie gaat deze opgave grote consequenties hebben voor de leefbaarheid, bereikbaarheid en veiligheid in de stad. Het verkeersplan, dat in maart 2019 door de raad is vastgesteld, bevat een pakket aan maatregelen om de parkeerdruk in de binnenstad te reguleren en de doorstroming te reguleren.

De voorgestelde parkeermaatregelen zijn geclusterd rond drie pijlers:

  • optimaliseren van het gebruik van het bestaande parkeeraanbod (realisatie van een parkeerverwijssysteem, ruimere openingstijden parkeergarage Claxonate, vergroten bekendheid avondopenstelling Eggertgarage (Q-park) en vergunninghoudersparkeerplaatsen omzetten naar betaalde parkeerplaatsen);
  • compenseren van het parkeertekort dat ontstaat door woningbouw (haalbaarheidsonderzoek parkeergarage Schapenmarkt en/of omgeving stadhuis);
  • beïnvloeden van het parkeergedrag (aantrekkelijker maken van alternatieve vervoerswijzen zoals fiets en het openbaar vervoer, beïnvloeden van het parkeertarief en het tarief voor de parkeervergunningen, uitbreiden nulvergunningenregeling en uitbreiden parkeerregulering).


Om de binnenstad autoluw te maken en het doorgaand verkeer te ontmoedigen de route door de binnenstad te nemen, zijn er globaal vier knoppen waar aan gedraaid kan worden. Zo kunnen maatregelen getroffen worden die betrekking hebben op de:

  • snelheid;
  • instelling verkeerslichten;
  • op- en afritten van de A7;
  • verkeerscirculatie.


Bovenstaand pakket is met behulp van een verkeersmodel doorgerekend. Daaruit blijkt dat het beoogde effect - een autoluwe binnenstad - alleen haalbaar is bij een combinatie van de vier maatregelen. In paragraaf 4.9 volgt een nadere onderbouwing van het aspect verkeer en parkeren binnen voorliggend bestemmingsplan.

Hoofdstuk 4 Milieuaspecten

4.1 Bodemkwaliteit

De Wet ruimtelijke ordening (Wro) bepaalt dat gemeenten regels moeten stellen bij het vaststellen van bestemmingsplannen. De regels zijn nodig om voor een goede ruimtelijke ordening te zorgen. Dit betekent dat de bodemkwaliteit en de voorgenomen bestemming met elkaar in overeenstemming moeten zijn. Een historisch onderzoek kan worden uitgevoerd om te bepalen of de bodem een planontwikkeling in de weg staat. Dit onderzoek kan aangevuld worden met een nader bodemonderzoek. Het is niet toegestaan om te bouwen op vervuilde grond.

Het bodembeleid onderscheidt drie soorten grond en bodem met ieder hun eigen beleid en wet- en regelgeving:

  • Sterk verontreinigde grond (boven interventiewaarden);
  • Licht verontreinigde grond (boven streefwaarden, na 1 juli 2008 AW2000-waarden);
  • Schone bodems (beneden streefwaarden, na 1 juli 2008 AW2000-waarden


Sinds 2008 is het Besluit bodemkwaliteit van kracht. Bij het toepassen van grond en bagger hanteert dit besluit een toets. De bodem moet met de gebruiksfunctie in balans zijn. Het doel van het Besluit bodemkwaliteit is duurzaam bodembeheer. De bescherming van de bodemkwaliteit voor mens en milieu moet in balans zijn met gebruik van de bodem voor maatschappelijke ontwikkelingen. Te denken valt aan woningbouw of het aanleggen van wegen. Er moet bij plannen rekening worden gehouden met de bodemkwaliteit in relatie tot de gewenste functies. Dit is bepaald in artikel 3.1.6 van het Besluit ruimtelijke ordening en artikel 3.2 Algemene wet bestuursrecht.

Doorwerking plangebied

In februari 2020 is er door NIPA Milieutechniek een verkennend bodemonderzoek en verkennend asbest in grond onderzoek uitgevoerd op percelen aan de Beemsterburgwal - Beemstersteeg te Purmerend (Gemeente Purmerend, sectie C, nummers 271, 3079, 4177, 3950, 2274, 3949, 3464, 3986 en 3989). Dit bodemonderzoek is uitgevoerd conform de richtlijnen van de NEN 5740. Het verkennend bodemonderzoek bestaat uit een vooronderzoek naar de historie en bodemgesteldheid van de onderzoekslocatie. Het doel van het bodemonderzoek is het vaststellen van de actuele bodemkwaliteit ter plaatse. Het verkennend onderzoek is als bijlage 1 toegevoegd aan de toelichting van voorliggend bestemmingsplan.

Op basis van de beschikbare gegevens is de hypothese gesteld dat de onderzoekslocatie beschouwd kan worden als verdacht met betrekking tot het voorkomen van een bodemverontreiniging met zware metalen. Tevens dient de locatie als verdacht beschouwd te worden op het voorkomen van asbest.

Grond

Het terreindeel ten noorden van de Beemstersteeg (percelen 3079 en 4177, in figuur 10 als 01 weergegeven) is sterk verontreinigd met koper en lood. Er is sprake van een geval van ernstige bodemverontreiniging (terrein oppervlakte 640 m2, diepte minimaal 0,9 meter, volume circa 576 m2). Vervolg onderzoek om de verontreiniging verder af te perken wordt gezien de heterogene aard van de verontreiniging niet zinvol geacht. Geadviseerd wordt op basis van de nu bekende gegevens de locatie te saneren.

De bodem ter plaatse van perceel 3949, gesitueerd op het terreindeel ten zuiden van de Beemstersteeg en in figuur 11 als 02 weergegeven, sterk verontreinigd is me koper en lood. Aangezien in de omliggende boringen de betreffende bodemlaag niet is onderzocht kan de omvang op basis van de momenteel bekende resultaten niet vastgesteld worden. Aanvullend onderzoek is echter niet noodzakelijk omdat ter plaatse geen woningen worden gerealiseerd, maar enkel parkeerplaatsen en openbare ruimte. Een nader onderzoek in het kader van het bestemmingsplan is daarom overbodig.

Verder, de bijmengingshoudende boven- en ondergrond, naast de sterke verontreinigingen met koper en lood, ook licht verontreinigd is met de barium, kwik, zink, kobalt , PAK en/ of minerale olie. Daar zijn geen verontreinigingen gemeten in de zintuiglijk schone bovengrond.

afbeelding "i_NL.IMRO.0439.BPVIJFHOEK2021-VA01_0015.png"

Figuur 11 - Plangebied in rood weergegeven met verontreinigde gebieden (bron: NIPA milieutechniek verwerkt door Lodewijck Groep)

Voor de voorgenomen herontwikkeling (bestemmingswijziging en nieuwbouwplan) van het terrein dienen sanerende maatregelen genomen te worden. Voorafgaand aan het nemen van sanerende maatregelen dient het bevoegd gezag middels een BUS melding of een saneringsplan hiervan in kennis gesteld te worden.

De milieuhygiënische conditie van de bodem vormt momenteel een belemmering voor de voorgenomen planontwikkeling. De aangetroffen sterk verontreinigingen in de grond kunnen bij grondafvoer beperkingen opleveren ten aanzien van het (her)gebruik van de grond omdat dan veelal andere normen gelden. Ten aanzien van hergebruik van deze grond elders is het Besluit Bodemkwaliteit van toepassing.

Grondwater

In het grondwater ter plaatse van peilbuis PBB zijn voor de geanalyseerde parameters geen verhoogde gehaltes ten opzichte van de achtergrondwaarde aangetoond. De pH en de Ec hebben, voor deze regio, normale waarden.

Asbest

Verdeeld over het verdachte terreindeel met een oppervlakte van circa 1.400 m2 zijn conform de NEN 5707, handmatig acht inspectiegaten gegraven van 30 x 30 centimeter. Bij de inspectie van het vrijgekomen materiaal is zintuiglijk geen asbestverdacht materiaal aangetroffen. Van de fijne fractie zijn twee mengmonsters (MMA1 en MMA2) samengesteld welke op de aanwezigheid van asbest zijn geanalyseerd. Uit de resultaten blijkt dat de fijne fractie geen asbest bevat. Op basis van de resultaten kan gesteld worden dat de locatie niet verdacht is met betrekking tot asbest.

Conclusie

Ten aanzien van de bodemkwaliteit dient in overleg met het bevoegd gezag een saneringsplan opgesteld te worden om de bodemkwaliteit gereed te maken voor de bestemming wonen. De locatie is weergegeven middels de aanduiding 01 in figuur 11.

Indien dit saneringsplan parallel loopt aan het bestemmingsplan zou dit verwerkt kunnen worden in het plan. Indien dit later gebeurd, zal er een voorwaardelijke verplichting opgenomen moeten worden in zowel het bestemmingsplan als de omgevingsvergunning die gecoördineerd meeloopt. Op basis van het reeds uitgevoerde bodemonderzoek en de geschatte omvang van de verontreiniging is er geen reden om aan te nemen dat het bodemaspect een belemmering vormt voor de ontwikkeling van de Vijfhoek.

Op basis van het uitgevoerde onderzoek kan geconcludeerd worden dat er ten aanzien van grondwater en asbest geen beperkingen aanwezig zijn voor de beoogde ontwikkeling.

4.2 Archeologie

4.2.1 Beleidskader

Het nationale beleid voor archeologie is afkomstig uit Europees beleid. Het Verdrag van Valletta (of wel: 'Verdrag van Malta') regelt hoe er omgegaan moet worden met het Europees archeologisch erfgoed. Nederland heeft het verdrag in 1992 ondertekend. De uitgangspunten van dit Europese verdrag zijn in de Nederlandse wet- en regelgeving verankerd. Dit is gedaan in de Wet op de archeologische monumentenzorg (Wamz). De Wamz is in werking getreden op 1 september 2007. Hiermee zijn een aantal wetten gewijzigd. Dit zijn onder andere de Monumentenwet (1988), de Ontgrondingenwet (Ow), de Wet milieubeheer (Wm), de Woningwet (Ww) en de Wet ruimtelijke ordening (Wro).

Sinds de Wamz hebben gemeenten een zorgplicht voor het archeologisch erfgoed. Dit is ook verwerkt in de Erfgoedwet sinds 1 juli 2016. In de toekomst zal de zorgplicht verwerkt worden in de Omgevingswet. Tot de Omgevingswet ingaat gelden voor onderdelen, die gaan over de fysieke leefomgeving, de bepalingen uit de Monumentenwet. Dit is opgenomen in de overgangsregeling van de Erfgoedwet.

Het archeologisch erfgoed in de bodem moet zoveel mogelijk behouden worden. Waar dit niet mogelijk is, dient het bodemarchief met zorg ontsloten te worden. Dit moet gedaan worden met archeologisch onderzoek. Het archeologisch belang moet vanaf het begin meewegen in de ontwikkeling en besluitvorming van ruimtelijke plannen.

4.2.1.1 Beleidskader gemeente Purmerend

De gemeente Purmerend heeft in 2009 een eigen archeologisch beleid opgesteld. In 2017 is dit beleid opgegaan in het Erfgoedbeleid Purmerend 2017. Hierbij hoort een archeologische verwachtingskaart. Dit is een voorspellingskaart waarop verwachtingen met betrekking tot de situering van (nog) onbekende archeologische vindplaatsen zijn vertaald in termen van vlakken en zones. Op de kaart worden zones aangegeven met verschillende verwachtingen: hoge, middelhoge of lage verwachting. De archeologische verwachtingskaart vormt de basis voor het opstellen van een beleidsadvieskaart, die vervolgens kan worden gebruikt voor de toetsing van ruimtelijke plannen op de mogelijke aanwezigheid van archeologische waarden. Het bestemmingsplan vormt het belangrijkste instrument voor de archeologische monumentenzorg. Voor gemeenten kunnen de door deskundigen opgestelde archeologische verwachtings- en beleidsadvieskaarten als leidraad worden gebuikt voor zowel de planologische bescherming van archeologische waarden in het ruimtelijke plan als voor het vaststellen van het benodigde archeologisch onderzoek dat bij voorbereiding van ruimtelijke plannen moet plaatsvinden. Ter plaatse van een lage archeologische verwachtingswaarde is er geen noodzaak om een verkennend archeologisch onderzoek uit te voeren voordat nieuwe bouwactiviteiten plaatsvinden. Ter plaatse van een hoge en middelhoge verwachtingswaarde dient bij grondwerkzaamheden eerst een verkennend archeologisch onderzoek te worden uitgevoerd door een hiertoe gecertificeerd bureau.

De Vijfhoek ligt in het historisch centrum van Purmerend, in een gebied met een hoge verwachtingswaarde. De bodemverstoring is meer dan 30 m2, waardoor archeologisch onderzoek verplicht is."


Doorwerking planinitiatief

Om de archeologische waarde binnen het plangebied in kaart te brengen heeft archeologisch adviesbureau Salisbury BV een bureauonderzoek (Rapportnummer 342) uitgevoerd. Het bureauonderzoek is als bijlage 2 toegevoegd aan de toelichting van voorliggend bestemmingsplan.

Het plangebied ligt in de historische kern van Purmerend. Zowel binnen als direct buiten het plangebied zijn bij ontgravingen intacte archeologische resten aangetroffen uit de Late Middeleeuwen en Nieuwe Tijd, onder meer een waterkelder, kademuren, ophogingslagen en een vermoedelijk riool. Er zijn dus goede aanwijzingen dat archeologische resten in het plangebied aanwezig zijn. Dit kan echter pas tijdens veldonderzoek daadwerkelijk worden bevestigd.

Op basis van het bureauonderzoek is geconcludeerd dat in het plangebied een hoge archeologische verwachting geldt voor de Late Middeleeuwen en Nieuwe Tijd. De archeologisch relevante niveaus bevinden zich waarschijnlijk direct onder het maaiveld tot een diepte van 2 - 4 meter - mv. Indien archeologische resten voorkomen binnen de voorgenomen ontgravingsdiepte dan kunnen deze verstoord raken door de plannen. Ook wanneer wordt gefundeerd op palen zal het archeologische niveau plaatselijk worden verstoord.

Conclusie

Op basis van het bureauonderzoek is een hoge verwachting op het aantreffen van archeologische resten binnen het plangebied vastgesteld. Deze verwachting is gebaseerd op de resultaten van onderzoek in de omgeving, de ligging in de historische binnenstad en de bebouwing die in ieder geval tot de 17e eeuw te traceren is.

Het bureauonderzoek is voorgelegd aan de gemeente Purmerend ter beoordeling. De gemeente Purmerend heeft op 14 mei 2020 een selectiebesluit genomen waarin de getrokken conclusies uit het bureauonderzoek worden onderschreven. Door middel van voortgezet archeologisch onderzoek, in de vorm van een inventariserend veldonderzoek in het onbebouwde gedeelte en een archeologische sloopbegeleiding in het bebouwde gedeelte, dienen eventuele archeologische resten te worden veiliggesteld.

De gemeente Purmerend en de initiatiefnemer zullen de noodzakelijke vervolgstappen gezamenlijk zetten. De gemeente Purmerend heeft het noodzakelijk Programma van Eisen (PvE) inmiddels goedgekeurd. De initiatiefnemer zal een gecertificeerd archeologisch bedrijf opdracht verlenen tot het uitvoeren van het inventariserend veldonderzoek en de archeologische begeleiding

Toevalsvondst archeologie

Ook in een vrijgegeven plangebied bestaat altijd de mogelijkheid dat er tijdens graafwerkzaamheden toch losse sporen en vondsten worden aangetroffen. Op grond van artikel 5.10 van de Erfgoedwet 2016 dient zo spoedig mogelijk melding te worden gemaakt van de vondst bij de gemeente, provincie of de Rijksdienst voor het Cultureel Erfgoed. Over de bevindingen en aanbevelingen uit dit onderzoek dient contact opgenomen te worden met het bevoegd gezag, in dit geval de gemeente Purmerend.

4.3 Cultuurhistorie

4.3.1 Beleidskader

In de toelichting van ruimtelijke plannen moet een beschrijving worden opgenomen van de wijze waarop met de in het gebied aanwezige cultuurhistorische waarden en in de grond aanwezige of te verwachten monumenten rekening is gehouden. Het doel hiervan is om cultuurhistorische belangen meer te laten meewegen in de ruimtelijke ordening. Hiertoe is op 1 januari 2012 het Besluit ruimtelijke ordening gewijzigd, waarbij dit voorschrift in artikel 3.1.6, tweede lid, onderdeel a is opgenomen.

De in de grond aanwezige waarden komen in de paragraaf over Archeologie aan bod, de overige cultuurhistorische aspecten worden in deze paragraaf besproken.

4.3.1.1 Beleidskader gemeente Purmerend

Op 2 november 2017 heeft de gemeenteraad het Erfgoedbeleid Purmerend 2017 vastgesteld. Dit beleid richt zich op het behoud van het Purmerendse erfgoed. Het spreekt de visie uit dat het erfgoed belangrijk is voor de stad. De gemeente heeft vier ambities met betrekking tot het erfgoed:

  • 1. de karakteristieke historische waarden van Purmerend blijven zo veel mogelijk behouden. Dit wil niet zeggen dat erfgoed onaantastbaar is, ontwikkelingen aan en rond cultuurhistorische waarden blijven mogelijk, mits dit gebeurt met respect voor het 'verhaal' van het object;
  • 2. de historische waarden van onze stad worden versterkt door bij nieuwe ruimtelijke ontwikkelingen een zichtbare relatie met het erfgoed te leggen. Dit geldt vooral voor locaties in de binnenstad en op bijzondere historische locaties.
  • 3. de kennis over het erfgoed wordt toegankelijker;
  • 4. de gemeente werkt samen met de Purmerendse burgers en ondernemers aan de ambities met betrekking tot het erfgoed.


Bij dit beleid is een Cultuurhistorische Waardenkaart opgesteld, waar al het erfgoed van Purmerend op is afgebeeld. Per ontwikkeling dient beoordeeld te worden in hoeverre bestaande cultuurhistorische waarden ingepast kunnen worden.

Doorwerking planinitiatief

afbeelding "i_NL.IMRO.0439.BPVIJFHOEK2021-VA01_0016.png"

Figuur 12: Uitsnede cultuurhistorische waardenkaart Purmerend (bron: gemeente Purmerend)

Binnen het plangebied zijn geen rijksmonumenten of gemeentelijke monumenten aanwezig. Aan de Beemsterburgwal grenst het plangebied aan een rijksmonument. Het gevelaanzicht aan de Beemsterburgwal wordt met voorliggend bestemmingsplan en het bouwplan in ere hersteld, hiermee wordt eer gedaan aan de historisch uitstraling van de panden aan de kade. Alhoewel de ontwikkeling geen direct invloed heeft op het rijksmonument, zal de algehele uitstraling aan de Beemsterburgwal verbeteren, dit heeft een positief effect op de cultuurhistorische beleving.

Binnen het plangebied heeft in het verleden een oude meelfabriek gestaan, deze is niet meer aanwezig. De architect heeft bij de bouwtekeningen rekening gehouden met deze oude architectuur. Om de relatie met het verleden extra kracht bij te zetten zal in de gevel aan de Kanaalstraat het woord 'Landbouw' worden verwerkt, zoals vroeger ook bij de meelfabriek het geval was.


4.4 Planologisch relevante leidingen

Het kan voorkomen dat er in of nabij het plangebied planologische relevante kabels en/of leidingen liggen. Planologisch relevant zijn hoofdnutsvoorzieningen, zoals leidingen voor het transport van giftige, brandbare en/of ontplofbare stoffen, aardgasleidingen, hoogspanningsleidingen of afvalwaterleidingen. Als dergelijke leidingen in of vlakbij het plangebied voorkomen worden deze als zodanig bestemd.

Doorwerking planinitiatief

De gemeente Purmerend heeft onderzoek gedaan naar de mogelijke aanwezigheid van planologisch relevante kabels in en/of nabij het plangebied. De vigerende bestemmingsplannen zijn van zeer lang geleden. Het is niet duidelijk of planologisch relevante leidingen al in de tijd dat 'Slotplein e,o, 1977' werd opgesteld, in bestemmingsplannen werden opgenomen. Op basis van bureauonderzoek kan geconcludeerd dat er geen hoofdgastransportleiding en andere belangrijke leidingen waar niet op gebouwd mag worden, door dit gebied lopen.

Naast planologisch relevante kabels en leidingen kunnen er binnen het plangebied wel andere kabels en leidingen aanwezig zijn. Voorafgaand aan graafwerkzaamheden dient er middel een KLIC - melding informatie vergaard te worden ten aanzien van de mogelijke aanwezigheid van overige kabels en leidingen binnen het plangebied. Dit aspect wordt bij het aanvragen van de omgevingsvergunning beoordeeld.

Kabels en leidingen vormen geen belemmering voor het beoogde planinitiatief en de vaststelling van voorliggend bestemmingsplan.

4.5 Externe veiligheid

Externe veiligheid heeft betrekking op de veiligheid voor de omgeving van een inrichting met gevaarlijke stoffen en/of transport van gevaarlijke stoffen. Elk nieuw ruimtelijk plan moet volgens de Wet ruimtelijke ordening getoetst worden aan de normen voor plaatsgebonden risico en groepsrisico. Daarbij kunnen de volgende bronnen worden onderscheiden:

Inrichtingen: risico's van onder andere tankstations met LPG, gevaarlijke stoffen (PGS-15)- opslagplaatsen en ammoniakkoelinstallaties;

  • Transport van gevaarlijke stoffen over de weg;
  • Transport van gevaarlijke stoffen per spoor;
  • Transport van gevaarlijke stoffen over het water;
  • Transport van gevaarlijke stoffen per buisleiding.


Plaatsgebonden risico

Het plaatsgebonden risico (PR) is de kans dat een denkbeeldige persoon op een bepaalde plaats overlijdt als rechtstreeks gevolg van een ongeval met gevaarlijke stoffen. De norm (één op één miljoen per jaar) geldt voor kwetsbare objecten als grenswaarde en voor beperkt kwetsbare objecten als richtwaarde. Dit betekent dat er als gevolg van een ongeval - in theorie - per jaar slechts één persoon op een miljoen mensen mag overlijden. Dit geldt ook als deze objecten geprojecteerd zijn.

Het plaatsgebonden risico van 10-6 contour is niet aan de orde binnen het plangebied. Alle risicobronnen zijn ver verwijderd van de beoogde ontwikkeling, waardoor het plangebied niet in de veiligheidszones ligt. Daarnaast verblijven personen slechts zeer kortstondig op het parkeerterrein. Hierdoor is het terrein niet aan te merken als kwetsbaar of beperkt kwetsbaar object. Het plaatsgebonden risico van de externe veiligheid vormt dus geen belemmering voor het plan.

Groepsrisico

Het groepsrisico (GR) is de kans op een ongeval met veel dodelijke slachtoffers. Hierbij wordt gekeken naar de werkelijk aanwezige bevolking en de verspreiding van die bevolking rond een risicobron.

Bepaald wordt hoe groot de kans is op tien, honderd of meer slachtoffers tegelijk onder die bevolking. Groepsrisicoberekeningen beogen maatschappelijke ontwrichting inzichtelijk te maken. Het groepsrisico is afhankelijk van de omvang van het ongeval. Bij ruimtelijke ontwikkelingen moet het groepsrisico worden verantwoord (VGR). Vanzelfsprekend speelt de hoogte van het groepsrisico een rol, ook de mogelijkheden voor zelfredzaamheid en bestrijdbaarheid maken onderdeel uit van de verantwoordingsplicht. De risicomaten zijn vastgelegd in diverse besluiten en beleidsnota's.

In het Besluit externe veiligheid inrichtingen (Bevi) en de bijbehorende Regeling externe veiligheid inrichtingen, zoals deze op dit moment luiden (REVI II), zijn de risiconormen voor externe veiligheid met betrekking tot bedrijven met gevaarlijke stoffen vastgelegd.

De normstelling voor het vervoer van gevaarlijke stoffen (voor zowel weg, spoor als water) is gebaseerd op de Nota Risico Normering Vervoer Gevaarlijke Stoffen (RNVGS) die reeds is vervallen. De nota heeft geen wettelijk bindende werking, maar is niet vrijblijvend. Voor buisleidingen geldt sinds 1 januari 2012 de regeling 'Besluit externe veiligheid buisleidingen'

Doorwerking plangebied

plaatsgebonden risico

Onderhavig bestemmingsplan maakt de realisatie van 54 woningen mogelijk. Nieuwe woningen worden in de regelgeving aangemerkt als 'kwetsbare objecten', waardoor dit aspect nader beschouwd dient te worden. Op basis van de risicokaart (figuur 13) ligt de locatie niet in het invloedsgebied van een transportroute, buisleiding of een inrichting. In onderstaande afbeelding is het plangebied weergegeven middel de letter A. De volgende risicobronnen zijn in de nabijheid van het plangebied aanwezig:

  • B: een LPG-reservoir gevestigd.
  • C: een buisleiding van Gasunie.
  • D: een LPG-reservoir gevestigd.

Geen van deze 10-6 contouren reiken tot het plangebied van onderhavig plangebied. Het aspect externe veiligheid vormt geen belemmering voor de vaststelling van voorliggend bestemmingsplan.

afbeelding "i_NL.IMRO.0439.BPVIJFHOEK2021-VA01_0017.png"

Figuur 13: Uitsnede risicokaart (bron: www.risicokaart.nl)

Groepsrisico

Ten aanzien van het groepsrisico is het binnen de gemeente Purmerend gebruikelijk om gedurende de procedure van een bestemmingsplan advies in te winnen bij de Veiligheidsregio. Het advies zal gedurende de procedure worden toegevoegd aan het bestemmingsplan.

4.6 Water

Nationaal Waterplan Het Nationaal Waterplan (NWP)

Nationaal Waterplan Het Nationaal Waterplan (NWP) is de opvolger van de Vierde Nota Waterhuishouding uit 1998 en vervangt alle voorgaande nota's waterhuishouding. Het Nationaal Waterplan is opgesteld op basis van de Waterwet die met ingang van 22 december 2009 van kracht is. Op basis van de Wet ruimtelijke ordening heeft het Nationaal Waterplan voor de ruimtelijke aspecten de status van structuurvisie.

Het NWP 2016-2021 bevat de hoofdlijnen van het nationaal waterbeleid en de daartoe behorende aspecten van het ruimtelijk beleid. Het kabinet actualiseert in het nieuwe NWP het waterbeleid op een aantal terreinen.

  • Het beleid met betrekking tot waterveiligheid en zoetwater is met vastgestelde deltabeslissingen in 2014 fundamenteel veranderd. Het rijksbeleid dat voortvloeit uit de voorstellen voor deze deltabeslissingen, is in 2014 met een tussentijdse wijziging verankerd in het NWP 2009-2015 en opgenomen in de actuele versie van het NWP voor de periode 2016-2021;
  • Het kabinet heeft de afgelopen jaren over verschillende beleidsterreinen afspraken gemaakt die raakvlakken hebben met water, zoals afspraken over energie (Energieakkoord), natuur (Natuurvisie), internationale inzet en vernieuwde bestuurlijke verhoudingen (SVIR, bestuursakkoord water en Deltaprogramma). Deze afspraken zijn verwerkt in het NWP en de betreffende beleidsdocumenten blijven van kracht;
  • Met de vaststelling van het NWP voldoet Nederland tevens aan de Europese eisen om actuele plannen en maatregelenprogramma's op te stellen volgens de Kaderrichtlijn Water (KRW), de Richtlijn Overstromingsrisico (ROR) en de Kaderrichtlijn mariene Strategie (KRM)

Het NWP formuleert antwoorden op ontwikkelingen op het gebied van klimaat, demografie en economie en investeren in een duurzaam waterbeheer. Een goede bescherming tegen overstromingen, het zoveel mogelijk voorkómen van wateroverlast en droogte en het bereiken van een goede waterkwaliteit zijn basisvoorwaarden voor welvaart en welzijn. Nederland als aantrekkelijk waterrijk land met een hoge mate van veiligheid levert een positieve bijdrage aan het vestigingsklimaat.

Waterwet 

Op 22 december 2009 is de Waterwet in werking getreden. Acht wetten zijn samengevoegd tot één wet, de Waterwet. De Waterwet regelt het beheer van oppervlaktewater en grondwater, en verbetert ook de samenhang tussen waterbeleid en ruimtelijke ordening. Daarnaast levert de Waterwet een flinke bijdrage aan kabinetsdoelstellingen zoals vermindering van regels, vergunningstelsels en administratieve lasten.

Doorwerking planinitiatief

Water is een belangrijk aspect binnen de ruimtelijk ordening. In het kader van ruimtelijke ontwikkelingen moet een watertoets plaatsvinden; een procedure waarbij de initiatiefnemer in een vroeg stadium overleg voert met de waterbeheerder over de ruimtelijke ontwikkeling. De watertoets heeft als doel te voorkomen dat (nieuwe) ruimtelijke ontwikkelingen plaatsvinden die in strijd zijn met duurzaam waterbeheer. De watertoets is middels de online tool 'De digitale Watertoets' uitgevoerd en het conceptadvies is toegevoegd als bijlage 3 aan de toelichting

In de waterparagraaf wordt onder andere aandacht besteed aan de waterdoorlatendheid van de ondergrond, het bepalen van de meest optimale afwatering en de eventuele noodzaak voor watercompensatie. Ten aanzien van het aspect watercompensatie kan geconcludeerd worden dat het plangebied in de bestaande situatie volledig verhard is, de hoeveelheid verharding zal derhalve niet toenemen.

Initiatiefnemer heeft inmiddels de noodzakelijke documenten bij het Hoogheemraadschap Hollands Noorderkwartier aangeleverd voor beoordeling. Het hoogheemraadschap zal op basis van de aangeleverde gegeven beoordelen of er aanvullende eisen gesteld worden aan de te verlenen watervergunning.

4.7 Bedrijven en milieuzonering

Bij het opstellen van een ruimtelijk plan dient de invloed van bestaande (of nieuw te vestigen) bedrijvigheid op de leefomgeving afgewogen te worden. Door middel van milieuzonering dient een ruimtelijke scheiding te worden aangebracht tussen milieubelastende functies en milieugevoelige functies, zoals wonen. De VNG-brochure Bedrijven en Milieuzonering (2009) geeft richtlijnen voor de in acht te nemen afstanden. Deze afstanden worden gemeten tussen de grens van de bestemming die bedrijven/milieubelastende activiteiten toestaat en de uiterste situering van de gevel van woningen. Aan de hand van de VNG-brochure is beoordeeld of de nieuwe bedrijvigheid (het parkeren) problemen oplevert voor de milieugevoelige functies in de omgeving (zoals wonen). De richtwaarden zijn gebaseerd op de nieuw vestiging van inrichtingen in een rustige woonwijk. Voor gebieden met functiemenging wordt in het algemeen uitgegaan van de toelaatbaarheid van kleinere afstanden tussen inrichtingen en milieugevoelige functies. Voor bestaande inrichtingen die zich bevinden op een kortere afstand dan de richtwaarde wordt uitgegaan van een overgangsrechtelijke situatie waarbij overlastsituaties kunnen worden voorkomen door het stellen van maatwerkvoorschriften.

Milieucategorie   Gemengd gebied   Rustige woonwijk  
1   0 meter   10 meter  
2   10 meter   30 meter  
3.1   30 meter   50 meter  
3.2   50 meter   100 meter  
4.1   100 meter   200 meter  
4.2   200 meter   300 meter  

Tabel 1 richtafstandentabel VNG-brochure Bedrijven- en Milieuzonering 

Doorwerking plangebied

Op basis van de omgeving van het plangebied kan geconcludeerd worden dat er sprake is van een gemengd gebied. De aangrenzende gronden binnen het bestemmingsplan 'Vijfhoek en Hazepolder' hebben de enkelbestemming 'Centrum'. Binnen de enkelbestemming centrum zijn zowel wonen als gering bedrijfsactiviteiten toegestaan. De bedrijfsactiviteiten zijn derhalve mengbaar met de functie wonen.

De bedrijven die in de nabijheid van het plangebied aanwezig zijn, zijn allen mengbaar met de functie 'Wonen'. Tevens zal de nieuwe woonbestemming geen belemmering opleveren voor bestaande bedrijven en rechten, voor alle bedrijven in de omgeving geldt dat er in de bestaande situatie reeds op korte afstand woonfuncties zijn toegestaan.

Conclusie

De realisatie van 54 nieuwe wooneenheden stuit ten aanzien van het aspect bedrijven en milieuzonering niet op belemmeringen. Het aspect vormt geen belemmering voor de vaststelling van voorliggend bestemmingsplan.

4.8 Geluid

In de Wet geluidhinder zijn geluidsnormen voor wegverkeerslawaai, railverkeerslawaai en industrielawaai opgenomen. Wanneer een nieuwe geluidsgevoelige bestemming wordt gerealiseerd en deze locatie binnen (één van) de geluidszones van wegverkeer, spoorwegverkeer of industrie valt, moet een akoestisch onderzoek worden uitgevoerd. Onder meer woningen, scholen en ziekenhuizen worden als een geluidsgevoelige bestemming aangemerkt.

Wegverkeer

Het geluidsniveau ten gevolge van het wegverkeer dient op de gevels van nieuwe (of te wijzigen) woningen in de geluidszone van een weg te voldoen aan de ten hoogste toelaatbare geluidsbelasting (voorkeursgrenswaarde). Deze bedraagt 48 dB. Indien dit geluidsniveau wordt overschreden, kan de gemeente een hoger geluidsniveau toestaan, de zogenaamde 'hogere waarde'. Tot vaststelling daarvan kan worden besloten, indien uit onderzoek is gebleken dat bron-, overdrachts- of gevelmaatregelen om het geluidsniveau terug te brengen onder de ten hoogste toelaatbare geluidsbelasting, niet mogelijk zijn. Voor nieuwe woningen in binnenstedelijke situaties geldt een maximale hogere waarde van 63 dB.

Spoorwegverkeer

Het geluidsniveau ten gevolge van het railverkeer dient op de gevels van nieuwe (of te wijzigen) woningen in de geluidszone van een weg te voldoen aan de ten hoogste toelaatbare geluidsbelasting (voorkeursgrenswaarde). Deze bedraagt 55 dB. Indien dit geluidsniveau wordt overschreden, kan ook hiervoor onder voorwaarden een hoger waarde worden vastgesteld van 68 dB.

Industrielawaai

Op basis van artikel 40 van de Wet geluidhinder kunnen (delen van) industrieterreinen worden aangewezen als gezoneerd industrieterrein met een zonegrens. Dit betreft industrieterreinen waarop zich gronden bevinden die zijn aangewezen voor mogelijke vestiging van zogenaamde "zware lawaaimakers" als genoemd in artikel 41 lid 3 van de Wet geluidhinder en artikel 2.1 lid 3 van het Besluit omgevingsrecht. Buiten de zonegrens mag de geluidbelasting vanwege het industrieterrein de waarde van 50 dB niet te boven gaan. De op 1 januari 2007 geldende ten hoogste toelaatbare geluidsbelastingen voor woningen, andere geluidsgevoelige gebouwen en geluidsgevoelige terreinen - vastgelegd in eerder genomen besluiten - blijven gelden.

Doorwerking plangebied

De Wet geluidhinder verlangt een akoestisch onderzoek in het geval nieuwe geluidgevoelige objecten, zoals woningen, binnen een zone van een weg, spoorlijn of gezoneerd industrieterrein worden gerealiseerd. Het plangebied is gelegen in de zone van de Beemsterburgwal, de Keermuur en de Kanaalstraat, waardoor een akoestisch onderzoek naar wegverkeerslawaai nodig is. De locatie ligt niet in de zone van een spoorlijn of een gezoneerd industrieterrein

Nabij het plangebied komen geen gezoneerde industrieterreinen voor en nabij het plangebied komen ook geen spoor-, tram- of metrowegen voor. Ten aanzien van spoorwegverkeer en industrielawaai is een nadere onderbouwing niet noodzakelijk.

Conclusie

Om de akoestische situatie binnen het plangebied in kaart te brengen heeft onderzoeksbureau NIPA Milieutechniek een akoestisch onderzoek wegverkeerslawaai uitgevoerd. Het onderzoek is toegevoegd als bijlage 4. In onderstaande conclusie zal een korte toelichting gegeven worden, voor een uitgebreide onderbouwing wordt verwezen naar het bijgevoegde rapport.

De nieuwe woonbestemmingen zijn geprojecteerd in de wettelijke geluidzone van de Zuiddijk, de Gedempte Where, de Gedempte Singelgracht en de Sluisbrug-Neckerdijk in Purmerend.

Wet geluidhinder

De geluidbelasting ter plaatse van de voorgevel de woningen aan de Beemsterburgwal vanwege het verkeer op de Zuiddijk inclusief de correctie ex art. 110g van de Wet geluidhinder, bedraagt ten hoogste 56 dB. Bij deze locatie wordt de voorkeursgrenswaarde op de maatgevende gevel van 48 dB met ten hoogste 8 dB overschreden.

Het bevoegd gezag dient een hogere waarde voor de nieuwe bestemming vast te stellen. Voor de geluidbelastingen en de motivatie wordt verwezen naar het uitgevoerde onderzoek in bijlage 4.

Bouwbesluit en Woon- en leefklimaat

Op grond van het Bouwbesluit is de geluidwering van een nieuwe woning tenminste 20 dB. Hieruit volgt dat de (gecumuleerde) geluidbelasting niet hoger mag zijn dan 53 dB om aan de richtwaarde van het binnengeluidniveau van 33 dB te voldoen. Bij een berekende geluidbelasting van ten hoogste 61 dB is het woon- en leefklimaat niet in alle woningen zonder nader onderzoek naar de geluidwering gewaarborgd.

In het kader van de aanvraag omgevingsvergunning zal de vereiste karakteristieke geluidwering moeten worden getoetst. In het kader van het bestemmingsplan kan geconcludeerd worden dat het aspect geluid geen belemmering vormt voor de vaststelling van voorliggend bestemmingsplan.

4.9 Verkeer en parkeren

De reikwijdte van het begrip 'goede ruimtelijke ordening' bestrijkt ook het goed omgaan met verkeer en parkeren. Ten aanzien van verkeer is het van belang dat de nieuwe functie aantoonbaar geen onevenredige verkeersaantrekkende werking heeft en dat er sprake is van een acceptabele verkeerssituatie. Daarnaast dienen er voldoende parkeerplaatsen voor de beoogde functie aanwezig te zijn. In het plangebied is de parkeernota "Nota parkeernormen Gemeente Purmerend 2016" van toepassing. Nieuwe ontwikkelingen dienen aan de parkeernormen van de parkeernormennota te voldoen.

Doorwerking plangebied

Parkeren

Op basis van de parkeernota van de gemeente Purmerend is de parkeerbehoefte berekend, daarbij is tevens rekening gehouden met de bezettingsgraad op verschillende momenten in een reguliere week. Onderstaande tabellen geven de parkeerbalans weer behorende bij de ontwikkeling van Vijfhoek weer.

Oppervlakte appartement   Parkeernorm   Aantal   Totaal  
tot 40 m2   0,5   7   3,5  
40 - 65 m2   1,2   23   27,6  
2765 - 120m2   1,3   22   28,6  
>120 m2   1,4   2   2,8  
       
Totaal     54   54,7  

Tabel 2: Parkeerbalans ontwikkeling Vijfhoek

De parkeerbehoefte is niet op elk moment gelijk. De parkeernota van de gemeente Purmerend maakt onderscheid tussen bijvoorbeeld werkdagen en weekenden, hierbij wordt ook rekening gehouden met de vaste gebruikers (bewoners) en de flexibele gebruikers (bezoekers). Op basis van dit onderscheid kan de parkeerbehoefte voor de gewenste ontwikkeling nog nader onderbouwd worden.

Parkeerbehoefte beoogde ontwikkeling  
  werkdag overdag   werkdag middag   werkdag avond   koopavond   werkdag nacht   zaterdag
middag  
zaterdag avond   zondagmiddag  
Vaste gebruikers   23,2   23,2   41,7   37   46,3   27,8   37   32,3  
Flexibele gebruikers   1,6   3,2   13   11,3   0   9,7   16,2   11,3  
Totaal   24,8   26,4   54,7   48,3   46,3   37,5   53,2   43,7  

Tabel 3: Parkeerbalans ontwikkeling Vijfhoek naar bezettingsgraad

Op basis van de parkeerberekening kan geconcludeerd worden dat de maximale parkeerbehoefte op een werkdagavond afgerond 55 bedraagt. De maximale parkeerdruk wordt ook wel het maatgevende moment genoemd. De ruimtelijke ontwikkeling moet op het maatgevende moment kunnen voorzien in voldoende parkeerplaatsen. Het uitgangspunt is dat de initiatiefnemer de parkeereis (op eigen terrein) realiseert. Afwijken van de parkeereis kan alleen indien de initiatiefnemer aantoont dat de parkeereis niet (volledig) op eigen terrein kan worden opgelost. Indien realisatie van de benodigde parkeerplaatsen op eigen terrein niet mogelijk is, wordt beoordeeld of mogelijk andere oplossingen kunnen leiden tot het wel voldoen aan de parkeereis.

Parkeervoorzieningen plangebied

Binnen het plangebied worden 40 openbare parkeerplaatsen gerealiseerd, daarmee kan nog niet worden voorzien in voldoende parkeergelegenheid voor het maatgevende moment. In ieder geval dient aangetoond te worden dat er ten alle tijden voldoende parkeerplaatsen zijn voor de vaste gebruikers. Omdat niet volledig op eigen terrein kan worden voorzien in de parkeerbehoefte is afwijking van de parkeernota noodzakelijk. De gemeente Purmerend biedt hiervoor 3 opties:

  • De nulvergunningenregeling;
  • Gebruik maken van restcapaciteit in de openbare ruimte;
  • Het faciliteren van alternatieve parkeervoorzieningen op loopafstand.

De bestaande situatie is een openbaar parkeerterrein met 60 parkeerplaatsen aan de Kanaalstraat. Hiervan wordt een deel verkocht aan de initiatiefnemer ten behoeve van woningbouw. Het resterende deel bestaat uit 40 parkeerplaatsen en blijft een openbaar parkeerterrein dat door de ontwikkelaar wordt heringericht. De toegang tot dit openbare parkeerterrein wordt in de nieuwe situatie via een poort onder het woongebouw door aan de Kanaalstraat gerealiseerd. Grenzend aan dit parkeerterrein heeft de initiatiefnemer terrein en panden verworven aan de Beemsterburgwal. Op de locaties Kanaalstraat en Beemsterburgwal samen worden in totaal 54 woningen gerealiseerd.

Gezien het feit dat er voor de nieuwe woningen geen nieuwe parkeerplaatsen worden aangelegd, is de nulvergunningenregeling conform vigerende parkeerverordening van toepassing. Deze regeling stelt dat er geen parkeervergunningen worden afgegeven op deze adressen. Bewoners woonachtig of bedrijven gevestigd op deze adressen komen dus niet in aanmerking voor een parkeervergunning. Op deze adressen worden ook geen bezoekersvergunningen afgegeven, De desbetreffende adressen worden vastgelegd in de zogeheten nulvergunningenadressenlijst behorend bij het vigerende uitvoeringsbesluit parkeerverordening.

De nulvergunningenregeling geldt niet voor een vijftal woningen van dit project. Deze uitzondering is gemaakt omdat het bouwinitiatief een aantal panden sloopt dat een parkeervergunningrecht had. De ontwikkelaar dient aan te geven welke vijf woonadressen het parkeervergunningrecht krijgen zodat dit besluit geborgd wordt in het vigerende uitvoeringsbesluit parkeerverordening.

Verkeer

Het plangebied is in de huidige situatie deels in gebruik als openbaar parkeerterrein, er is dus al sprake van een groot aantal verkeersbewegingen. De bestaande infrastructuur kan de (hooguit) kleine toename van verkeersbewegingen ten opzichte van de bestaande situatie opvangen.

Conclusie

Op basis van de opgestelde parkeerbalans kan geconcludeerd worden dat er op eigen terrein niet kan worden voorzien in voldoende parkeergelegenheid. Het plan voorziet in 40 openbare parkeerplaatsen, het maatgevende moment vraagt echter een parkeerbehoefte van 55 parkeerplaatsen. Dit wordt conform de nulvergunningenregeling van de gemeente Purmerend opgelost, deze afspraken zijn vastgelegd tussen de gemeente en de initiatiefnemer.

4.10 Luchtkwaliteit

Het toetsingskader voor luchtkwaliteit wordt gevormd door de Wet milieubeheer, titel 5.2; ofwel de Wet luchtkwaliteit. Het uitgangspunt bij ruimtelijke planvorming is dat een project niet leidt tot overschrijding van luchtkwaliteitsnormen. In bijlage 2 van de Wet milieubeheer zijn grenswaarden opgenomen voor een aantal stoffen die als verontreiniging in de lucht voorkomen. In de praktijk richt de aandacht zich vooral op de stoffen stikstofdioxide en fijn stof (PM10 en PM2,5). Van deze stoffen komen in Nederland concentraties voor die in de buurt van de grenswaarde liggen. De overige stoffen die in bijlage 2 zijn genoemd liggen over het algemeen ver onder de grenswaarden. De grenswaarden van de stikstofdioxide en fijn stof zijn in onderstaande figuur weergegeven. De grenswaarden gelden voor de buitenlucht, met uitzondering van een werkplek in de zin van de Arbeidsomstandighedenwet.

Stof   Toetsing van   Grenswaarde   Geldig  
Stikstofdioxide (NO2)   Jaargemiddelde concentratie   40 µg/m3   Vanaf 2015  
Fijn stof (PM10)   Jaargemiddelde concentratie   40 µg/m3   Vanaf 11 juni 2011  
  24-uurgemiddelde concentratie   Max. 35 keer p.j. meer dan 50 µg/m3   Vanaf 11 juni 2011  
Fijn stof (PM2,5)   Jaargemiddelde concentratie   25 µg/m3    

Tabel 4 Grenswaarden luchtkwaliteit

Op grond van artikel 5.16 van de Wm kunnen bestuursorganen bevoegdheden die gevolgen kunnen hebben voor de luchtkwaliteit uitoefenen indien:

  • de bevoegdheden/ontwikkelingen niet leiden tot een overschrijding van de grenswaarden (lid 1 onder a);
  • de concentratie in de buitenlucht van de desbetreffende stof als gevolg van de uitoefening van die bevoegdheden per saldo verbetert of ten minste gelijk blijft (lid onder b1);
  • bij een beperkte toename van de concentratie van de desbetreffende stof, door een met de uitoefening van de betreffende bevoegdheid samenhangende maatregel of een door die uitoefening optredend effect, de luchtkwaliteit per saldo verbetert (lid 1 onder b2);
  • de bevoegdheden/ontwikkelingen niet in betekenende mate bijdragen aan de concentratie in de buitenlucht (lid 1 onder c);
  • het voorgenomen besluit is genoemd of past binnen het omschreven Nationaal Samenwerkingsprogramma Luchtkwaliteit (NSL) of een vergelijkbaar programma dat gericht is op het bereiken van de grenswaarden (lid 1 onder d).


In het kader van een goede ruimtelijke ordening wordt bij het opstellen van ruimtelijke plannen uit oogpunt van de bescherming van de gezondheid van de mens tevens rekening gehouden met de luchtkwaliteit ter plaatse van het projectgebied. Met grof stof wordt rekening gehouden bij de milieuzonering en wordt niet in het kader van luchtkwaliteit meegenomen.


Besluit niet in betekenende mate (nibm)

De Wet luchtkwaliteit maakt onderscheid tussen grote en kleine ruimtelijke projecten. Een project is klein als het slechts in geringe mate, ofwel niet in betekenende mate (nibm), leidt tot een verslechtering van de luchtkwaliteit. In het Besluit niet in betekenende mate (nibm) is bepaald in welke gevallen een project vanwege de gevolgen voor de luchtkwaliteit niet aan de grenswaarden hoeft te worden getoetst. Hierbij worden twee situaties onderscheiden:

  • Een project heeft een effect van minder dan 3% van de jaargemiddelde grenswaarde NO2 en PM10;
  • Een project valt in een categorie die is vrijgesteld aan toetsing aan de grenswaarden; deze categorieën betreffen onder andere woningbouw met niet meer dan 1.500 woningen bij één ontsluitingsweg of niet meer dan 3.000 woningen bij twee ontsluitingswegen.


Door het Ministerie van Infrastructuur en Milieu is in samenwerking met Kenniscentrum InfoMil een rekentool ontwikkeld waarmee de bijdrage van kleinere ruimtelijke plannen en verkeersplannen aan de luchtkwaliteitseisen kan worden vastgesteld. Alleen het extra aantal voertuigbewegingen en het aandeel vrachtverkeer worden ingevoerd. Voor de overige invoergegevens is de NIBM-tool uitgegaan van worst-case omstandigheden. Met deze beperkte invoergegevens wordt vastgesteld of een plan 'niet in betekenende mate' bijdraagt aan luchtverontreiniging.

Doorwerking planinitiatief

Onderhavig bestemmingsplan maakt de realisatie van 54 woningen mogelijk. De ontwikkeling die hiermee mogelijk wordt gemaakt blijft hiermee ruim onder de drempelwaarden die zijn gesteld in het Besluit niet in betekende mate. Op basis van de kaart Nationale Samenwerking Luchtkwaliteit-tool (NSL-tool) kan worden vastgesteld hoe de luchtkwaliteit ter plaatse is. Zoals te zien in figuur 14 is de luchtkwaliteit ter plaatse aanvaardbaar en blijft de PM10 en NO2 concentratie onder de drempelwaarde 40 µg/m3. Het aspect luchtkwaliteit vormt geen belemmering voor onderhavig bestemmingsplan.

afbeelding "i_NL.IMRO.0439.BPVIJFHOEK2021-VA01_0018.png"

Figuur 14: Uitsnede NSL - monitoringstool (bron: NSL - monitoringstool)

4.11 Stikstof

Voorheen diende op grond van het Programma Aanpak Stikstof (PAS) - dat juli 2015 van kracht werd - berekend te worden of een nieuwe (bouw)activiteit leidde tot een significante toename van stikstofdepositie op Natura 2000-gebieden. Onder het PAS golden enkele drempel- en grenswaarden die bepaalden of een toename van stikstofdepositie significant was en zo ja, of er dan een meldingsplicht of een vergunningplicht gold. Door te rekenen met het voorgeschreven rekenprogramma AERIUS Calculator werd automatisch met die drempelwaarden rekening gehouden. In het geval van de meldingsplicht kon de planontwikkeling aanspraak kan maken op benutting van de ontwikkelingsruimte die voor een Natura 2000-gebied gold, totdat deze niet meer voorradig was.

Als gevolg van de uitspraak van de Afdeling bestuursrechtspraak van de Raad van State van 29 mei 2019 mag het PAS niet meer gebruikt worden als toestemmingskader voor ruimtelijke ontwikkelingen die leiden tot een toename van stikstofdepositie op (stikstofgevoelige habitattypen in) Natura 2000-gebieden. De drempel- en grenswaarden uit het PAS zijn daarmee ook niet meer van toepassing. Hierdoor kan een project met een geringe depositietoename van 0,01 mol/ha/jaar al vergunningplichtig zijn (artikel 2.7 en 2.8 Wnb). Oftewel, ook relatief kleinschalige projecten dienen zorgvuldig op hun stikstofdepositie getoetst te worden om aan Europese regelgeving te kunnen voldoen (en stand te houden bij de Afdeling bestuursrechtspraak van de Raad van State in geval van een beroep).

Sinds de vernieuwing van AERIUS Calculator kan correct berekend worden of er überhaupt sprake is van stikstofdepositie op relevant Natura 2000-gebied. Daarbij dient zowel de realisatiefase als de gebruiksfase doorgerekend te worden.

Doorwerking planinitiatief

Om de mogelijk stikstofdepositie in kaart te brengen heeft NIPA Milieutechniek een Aerius - berekening uitgevoerd. De Aerius - berekening heeft betrekking op zowel de realisatiefase als de gebruiksfase. De berekening is toegevoegd als bijlage 5

In dit onderzoek zijn voor de bouw het gebruik van 54 appartementen in plangebied ‘Vijfhoek 2020’ te Purmerend de te verwachten stikstofdeposities ter plaatse van Natura 2000-gebieden berekend.

Uit de rekenresultaten blijkt dat er in de realisatiefase en de gebruiksfase op géén van de Natura 2000-gebieden een stikstofdepositie optreedt die groter is dan 0,00 mol/ha/jaar. Op grond van de depositie van stikstof is er geen reden het initiatief te belemmeren.

Op grond van de beoordelingssystematiek hoeft er geen vergunning in het kader van de Wnb te worden aangevraagd. Het aspect stikstof vormt geen belemmering voor de vaststelling van voorliggend bestemmingsplan.

4.12 Flora en fauna

Per 1 januari 2017 is de Wet natuurbescherming van kracht. De Wet natuurbescherming vervangt drie actuele wetten: de Flora- en faunawet, de Boswet en de Natuurbeschermingswet 1998. In de Wet natuurbescherming is de bescherming van soorten en gebieden vastgelegd.

Verantwoording soortenbescherming

De toets aan de natuurwetgeving is een getrapte toets. Allereerst is een quickscan flora en fauna (natuurtoets) nodig. De resultaten van de quickscan bepalen of een vervolgonderzoek uitgevoerd moet worden. Een voorbeeld van een vervolgonderzoek is een onderzoek naar de aanwezigheid van vleermuizen of andere beschermde soorten. Het plan kan soms onder bepaalde voorwaarden worden uitgevoerd als er negatieve effecten worden verwacht, bijvoorbeeld door het nemen van maatregelen om negatieve effecten te verminderen of te voorkomen. Er is meestal een ontheffing nodig van de provincie als negatieve effecten niet voorkomen kunnen worden.

Verantwoording gebiedsbescherming

Vanuit de Wet natuurbescherming (Wnb) zijn er natuurgebieden aangewezen die beschermd zijn. Het gaat daarbij om Natura 2000-gebieden. Deze gebieden zijn uitgesplitst in Habitatrichtlijngebieden Vogelrichtlijngebieden. Binnen de diverse Natura 2000-gebieden komen een aantal stikstofgevoelige habitattypen voor.

Doorwerking plangebied

In februari 2020 is een quickscan Flora en Fauna uitgevoerd door Taharo omgevingsmanagement ter plaatse van het projectgebied.

Gelet op de potentiële ecologische waarden kan het voorgenomen plan in overeenstemming met de nationale natuurwetgeving en het provinciale natuurbeleid worden uitgevoerd, mits voorafgaand en tijdens het uitvoeren van de werkzaamheden het bepaalde in de Wet natuurbescherming, onderdeel soorten, in acht te worden genomen:

  • Ten aanzien van vleermuizen dient nader (protocollair) onderzoek uit te wijzen of door de bouw van de woningen aan de Beemsterburgwal mogelijk rust- of verblijfplaats van een vleermuissoort worden ingesloten. Indien aanwezig dient een ontheffing aangevraagd te worden alvorens met de bouw kan worden begonnen.
  • Ten aanzien van broedvogels zonder jaarrond beschermde nesten dient, om overtreding op voorhand redelijkerwijs te voorkomen, het verwijderen van nestgelegenheid buiten het broedseizoen te worden uitgevoerd, of een controle moet de aanwezigheid van een broedgeval kunnen uitsluiten;
  • Ten behoeve van (incidenteel) aanwezige algemene soorten dient de zorgplicht in acht te worden genomen.

Daarnaast is met betrekking tot het onderdeel Natura 2000 inzichtelijk gemaakt dat er geen sprake is van een significantie toename van de stikstofdepositie ter plaatse van Natura 2000-gebieden. Vervolgonderzoek ten behoeve van het NNN en/of toetsing aan het onderdeel houtopstanden is bij dit plan verder niet aan de orde. De Aerius berekening is reeds in paragraaf 4.11 besproken.

Om het plangebied en de nabije omgeving in de toekomst aantrekkelijk te maken voor verschillende diersoorten worden er door initiatiefnemer en de architect voorzieningen opgenomen. Deze voorzieningen voor o.a. gierzwaluwen, vleermuizen en huismussen zullen in de bouwwerken worden geïntegreerd.

Conclusies onderzoek vleermuizen

Binnen het plangebied gaan geen vaste rust- of verblijfplaatsen van vleermuizen verloren en worden eveneens geen vleermuizen verstoord door de werkzaamheden. De paarplaats die aanwezig is zit op een plaats waar geen direct licht vanuit de bouwlocatie kan vallen, waardoor verstoring tot een aanvaardbaar minimum wordt beperkt. Er is geen sprake van wezenlijke verstoring tijdens de sloop en bouwwerkzaamheden.

Het plangebied fungeert niet als essentieel foerageergebied of essentiële vliegroute voor de gewone dwergvleermuis. Met het uitvoeren van de werkzaamheden wordt de Wet natuurbescherming niet overtreden. Omdat het onderzoek heeft plaatsgevonden volgens de aanwijzingen van het vleermuisprotocol kan worden gesteld dat het plangebied afdoende is geïnventariseerd voor vleermuizen.

Negatieve effecten van de ingreep op vleermuizen zijn niet te verwachten. De ingreep leidt niet tot een overtreding van de Wet natuurbescherming voor wat betreft vleermuizen.

4.13 Duurzaamheid

De gemeente Purmerend heeft haar duurzaamheidsambities samengevat in de duurzaamheidsagenda 2019 - 2022. Dit beleid is de opvolger van de Duurzaamheidsagenda 2017-2020. Een belangrijk deel van de opgenomen beleidsvoornemens blijven gelden, maar er zijn ook nieuwe doelstelling bijgekomen. Deze agenda wordt jaarlijks bijgesteld, op basis van nieuwe inzichten en mogelijkheden op het gebied van duurzaamheid. De agenda is uitgewerkt in 6 onderdelen:

  • 1. gebouwde omgeving;
  • 2. duurzame bedrijven;
  • 3. duurzame mobiliteit;
  • 4. duurzame energie;
  • 5. duurzame stad en regio;
  • 6. duurzame gemeente.

Doorwerking plangebied

Het planvoornemen houdt rekening met de duurzaamheidsambities en -opgaven uit de Duurzaamheidsagenda 2019 - 2022. De appartementen voldoen aan het bouwbesluit en worden zoveel mogelijk energieneutraal uitgevoerd. Op deze binnenstad locatie is nu nog geen stadsverwarming aanwezig. Onderzocht is of een volledig elektrische oplossing met gebruik van een combi warmtepomp en zonnepanelen uitkomst kon bieden. Dit is financieel niet haalbaar gebleken omdat hiervoor het bestaande elektriciteitsnet in de binnenstad ingrijpend moet worden aangepast. Een oplossing met gebruik van bodemwarmte bleek evenmin financieel haalbaar. Stadsverwarming Purmerend bekijkt op dit moment of doortrekken van het netwerk naar de Vijfhoek en het Slotplein als opvolging van de aansluiting van het bouwplan PostNL op korte termijn haalbaar is. Als dit lukt worden de woningen in de Vijfhoek op stadsverwarming aangesloten. Zo niet, dan komt er voorlopig nog een gasaansluiting. De gasaansluiting wordt in dat geval zodanig gemaakt dat te zijner tijd het omzetten van gas naar stadsverwarming eenvoudig mogelijk is.

In het middengebied worden groene parkeerplaatsen aangelegd. Daarnaast is voor de vergroening van dit ontwikkelgebied een bedrag van € 30.000 gereserveerd. Dit zal in overleg met de ontwikkelaar gebruikt worden voor zaken zoals het aanbrengen van nestkasten voor o.a. gierzwaluwen, vleermuizen en huismussen en zo mogelijk beplanten van een zijgevel of maken van een groen dak

4.14 Milieueffectrapportage

De centrale doelstelling van het instrument milieueffectrapportage is het milieubelang een volwaardige plaats te geven in de besluitvorming over activiteiten met mogelijke belangrijke nadelige gevolgen voor het milieu. De basis van de milieueffectrapportage wordt gevormd door de EU-richtlijn m.e.r. Deze richtlijn is in Nederland geïmplementeerd in de Wet milieubeheer en het Besluit m.e.r. In het Besluit m.e.r. bestaat een belangrijk onderscheid tussen bijlage C en bijlage D. Voor activiteiten die voldoen aan de diverse criteria uit bijlage C geldt een m.e.r.-plicht. In bijlage D staan de activiteiten benoemd waarvoor een m.e.r.-beoordelingsplicht geldt: er moet beoordeeld worden of sprake is van (mogelijke) belangrijke nadelige milieugevolgen. Als deze niet uitgesloten kunnen worden, geldt een m.e.r.-plicht. Kunnen deze belangrijke nadelige milieugevolgen wel uitgesloten worden, dan is een m.e.r. niet noodzakelijk.

Uit het Besluit m.e.r. volgt dat een m.e.r.-beoordeling verplicht is voor de vaststelling van een bestemmingsplan voor de aanleg, wijziging of uitbreiding van een stedelijk ontwikkelingsproject met een oppervlakte van 100 ha of meer en/of een aaneengesloten gebied van 2.000 woningen of meer en/of een bedrijfsvloeroppervlak van 200.000 m2 of meer (Besluit m.e.r., onderdeel D, categorie 11.2). Omdat de beoogde ontwikkeling bestaat uit de realisatie van ca. 54 woningen met een geringe omvang, is op basis hiervan géén m.e.r.-beoordeling nodig. Wanneer de drempelwaarden niet worden overschreden geldt in het kader van het bestemmingsplan (dan wel uitwerkingsplan) een zogenaamde vorm-vrije m.e.r.-beoordelingsplicht.

Beoordeling planinitiatief

De voorgenomen ontwikkeling blijft ruim onder de drempelwaarde van 2000 woningen. Conform het Besluit m.e.r. is voor ontwikkelingen die in de D-lijst zijn opgenomen, maar onder de drempelwaarden blijven, een vormvrije m.e.r.-beoordeling noodzakelijk. Deze vormvrije m.e.r.-beoordeling vindt plaats in de vorm van aanmeldnotitie. Het college van Burgemeester en wethouders dient op basis van deze aanmeldnotitie te besluiten dat negatieve milieugevolgen uitgesloten zijn. Het college van B&W heeft voorafgaand aan de vaststelling van het ontwerp bestemmingsplan besloten dat er geen m.e.r. opgesteld hoeft te worden.

Hoofdstuk 5 Uitvoerbaarheid

5.1 Maatschappelijke uitvoerbaarheid

5.1.1 Overleg 3.1.1 Bro

Artikel 3.1.1 van het Besluit ruimtelijke ordening (Bro) schrijft voor dat een bestuursorgaan dat belast is met de voorbereiding van een bestemmingsplan, daarbij overleg pleegt met de besturen van betrokken gemeenten en waterschappen en met die diensten van Rijk en provincie die betrokken zijn bij de zorg voor de ruimtelijke ordening of belast zijn met de behartiging van belangen welke in het plan in het geding zijn. Artikel 3.1.6 Bro bepaalt daarnaast dat in de toelichting de uitkomsten van dit overleg worden beschreven. In onderstaande tabel is aangegeven aan welke instanties het voorontwerpbestemmingsplan toegestuurd wordt in verband met het overleg bedoeld in artikel 3.1.1. Bro.

In dit geval zijn andere gemeenten en de provincie en rijk niet betrokken aangezien voorliggend bestemmingsplan hun belangen niet raakt.

5.1.2 Algemene inspraakverordening

De Algemene Inspraakverordening van de gemeente Purmerend bepaalt dat elk bestuursorgaan ten aanzien van zijn eigen bevoegdheden kan besluiten of inspraak wordt verleend bij de voorbereiding van gemeentelijk beleid.

Op 19 april 2018 en 16 april 2019 zijn inloopavonden met omwonenden gehouden. Hier werd over het algemeen positief op het bouwplan gereageerd. De grootste zorg die leefde ging over het parkeren en de verkeersstromen. Met diverse directe omwonenden heeft initiatiefnemer meermalen persoonlijk contact gehad om het plan zodanig aan te passen dat hun woonkwaliteit er zo min mogelijk op achteruit gaat. 

5.1.3 Overleg 3.8 Wro

Artikel 3.8 Wro bepaalt dat op de voorbereiding van een bestemmingsplan afdeling 3.4 van de Algemene wet bestuursrecht van toepassing is. Deze afdeling bevat bepalingen rond de Uniforme openbare voorbereidingsprocedure.

Het ontwerp van dit bestemmingsplan heeft conform afdeling 3.4 van de Awb gedurende een periode van zes weken ter inzage gelegen. Gedurende deze periode zijn er geen zienswijzen ingediend bij de gemeente.

5.2 Economische uitvoerbaarheid

Op grond van artikel 3.1.6 van het Besluit ruimtelijke ordening dient inzicht te worden gegeven in de uitvoerbaarheid van het plan. Daarnaast is tevens de Grondexploitatiewet van toepassing als een plan voorziet in het juridisch-planologisch faciliteren van bouwplannen, zoals bepaald in het Bro. Onderhavig plan voorziet in de ontwikkeling van een plan, zoals opgenomen in het Bro. Dit betekent dat er voor dit plan ook een exploitatieplan vastgesteld moet worden. Echter kan op basis van artikel 6.12 lid 2 van de Wro ook door de gemeenteraad besloten worden om geen exploitatieplan vast te stellen, indien:

  • het verhaal van kosten van de grondexploitatie over de in het plan of besluit begrepen gronden anderszins verzekerd is;
  • het bepalen van een tijdvak of fasering als bedoeld in artikel 6.13, eerste lid, onder c, 4, onderscheidenlijk 5, niet noodzakelijk is;
  • het stellen van eisen, regels, of een uitwerking van regels als bedoeld in artikel 6.13, tweede lid, onderscheidenlijk b, c of d, niet noodzakelijk is.

De gemeente Purmerend en de initiatiefnemer hebben een anterieure overeenkomst gesloten.

Hoofdstuk 6 Juridische planbeschrijving

De verschillende in het plangebied aanwezige functies zijn overeenkomstig hun huidige gebruik bestemd. Daarnaast biedt het bestemmingsplan de juridische basis voor een aantal nog te realiseren woningen. In de regels van dit bestemmingsplan is aansluiting gezocht bij de regels zoals opgenomen in vigerende bestemmingsplannen van de gemeente Purmerend

Bestemmingsregels

Artikel 3 Verkeer - verblijfsgebied

De bestemming 'verkeer - verblijfsgebied' wordt toegekend aan wegen met een verkeers- of verblijfsfunctie. Binnen deze bestemming is een aantal daarin passende gebruiksvormen toegestaan, zoals parkeren, ondergrondse containers, groen- en water, voorzieningen ten behoeve van stadsverwarming, jongerenontmoetingsplaatsen en speelvoorzieningen.

Artikel 4 Wonen

Op gronden met de bestemming Wonen mogen hoofdgebouwen, bedoeld voor de bewoning door personen, worden gebouwd.

Artikel 5 Waarde - Archeologie

In het plangebied zijn de archeologische verwachtingen zodanig hoog, dat via dit bestemmingsplan deze waarden dienen te worden beschermd. De bestemming Waarde archeologie zorgt hiervoor. In de bestemming Waarde archeologie worden regels gesteld aan het bouwen en aanleggen. Deze regels gelden bovenop de regels die in de 'onderliggende' bestemming staan.

Voor het bouwen geldt dat uitsluitend mag worden gebouwd indien het bouwplan betrekking heeft op vervanging, vernieuwing of verandering van bestaande bouwwerken, waarbij de oppervlakte, voor zover gelegen op of onder peil niet wordt uitgebreid en gebruik wordt gemaakt van de bestaande fundering en het bouwplan voldoet aan de bouwregels van de betrokken andere bestemming. Voor het overige mogen uitsluitend bouwwerken, geen gebouw zijnde worden gebouwd, met een maximale hoogte van 3 meter.

Bovengenoemde bouwregels gelden bij ingrepen in de bodem vanaf 30 m2 respectievelijk 100m2. In het plangebied zijn dan ook twee regimes geldig voor de archeologie; een hoge en een middelhoog beschermingsregime.

Verder is er een vergunningenstelsel opgenomen voor het uitvoeren van een werk, geen bouwwerk zijnde, of van werkzaamheden. Dit stelsel zorgt ervoor dat voor bepaalde activiteiten (bijvoorbeeld grondwerkzaamheden, verlagen van het waterpeil, het ophogen van de bodem enz) van te voren een omgevingsvergunning van het college van BenW verleend moet worden.

Artikel 6 Waterstaat - Waterkering

Voor deze bestemming gelden dezelfde bouwregels als voor de bestemming Waarde- Archeologie. Het doel van deze regels is dat de waterstaatkundige voorzieningen beschermd blijven.

Algemene Regels

Artikel 7 Anti-dubbeltelregel

Het doel van deze bepaling is te voorkomen dat grond die al in aanmerking is genomen of betrokken is bij het verlenen van een vergunning niet nog een keer wordt betrokken bij een aanvraag om omgevingsvergunning. Hierdoor wordt voorkomen dat met gebruikmaking van privaatrechtelijke overeenkomsten, de publiekrechtelijke regels worden ondergraven.

Artikel 8 Algemene bouwregels

In dit artikel worden regels gegeven voor bouwwerken die op twee of meer bestemmingen van toepassing zijn.

Artikel 9 Algemene gebruiksregels

In de algemene gebruiksbepaling is opgenomen wat onder verboden gebruik van de gronden wordt verstaan.

Artikel 10 Algemene afwijkingsregels

Dit artikel geeft een regeling voor het geval dit voor een betere technische realisering van bouwwerken dan wel in verband met de werkelijke toestand van het terrein noodzakelijk is. Deze afwijkingsregel dient bij uitzondering te worden toegepast. De noodzaak om van de bestemmingsregeling af te wijken dient te worden aangetoond.

Artikel 11 Algemene wijzigingsregels

Dit artikel geeft een regeling voor het geval het noodzakelijk is af te wijken van de bestemmingsgrenzen zoals benoemd in dit bestemmingsplan. Dit dient bij uitzondering te worden toegepast, en alleen als dit zorgt voor een technisch betere realisering van bestemmingen of bouwwerken of als dit noodzakelijk is in verband met de werkelijke toestand van het terrein.

Artikel 12 Overgangsrecht

Dit artikel betreft het overgangsrecht met betrekking tot gebruik van onbebouwde gronden en bouwwerken dat afwijkt van het bestemmingsplan op het moment dat dit in werking treedt. Dit gebruik mag worden voortgezet. Wijziging van het afwijkend gebruik is slechts toegestaan indien de afwijking hierdoor wordt verkleind. Daarnaast zijn overgangsregels opgenomen ten aanzien van het bouwen. Een bouwwerk dat afwijkt van de bouwregels van het bestemmingsplan op het moment dat dit in werking treedt, mag gedeeltelijk worden vernieuwd of veranderd, of na een calamiteit geheel worden vernieuwd of veranderd. De afwijking mag daarbij naar aard en omvang niet worden vergroot. Daarvan mag eenmalig worden afgeweken tot maximaal 10% van de inhoud van het bouwwerk. Het overgangsrecht is niet van toepassing op bouwwerken die reeds in strijd waren met het voorgaande geldende bestemmingsplan.