direct naar inhoud van 5.1 Externe veiligheid
Plan: Bestemmingsplan Wheermolen 2010
Status: ontwerp
Plantype: bestemmingsplan
IMRO-idn: NL.IMRO.0439.BPWM2010-on01

5.1 Externe veiligheid

Bij ruimtelijke plannen dient ten aanzien van externe veiligheid naar verschillende aspecten te worden gekeken, namelijk:

  • bedrijven waar activiteiten plaatsvinden die gevolgen hebben voor de externe veiligheid;
  • vervoer van gevaarlijke stoffen over wegen, spoor, water;
  • vervoer van gevaarlijke stoffen via leidingen.

Bij het aspect externe veiligheid zijn een tweetal begrippen van belang, te weten: plaatsgebonden risico (grenswaarde) en groepsrisico (oriënterende waarde). De grenswaarde voor het plaatsgebonden risico voor woningen en kwetsbare objecten is gesteld op een niveau van 10–6 per jaar. Dat wil zeggen dat de kans op een dodelijke situatie door een ongeval met gevaarlijke stoffen op een te bouwen plek maximaal één op de miljoen per jaar mag zijn. Bovendien geldt een inspanningsverplichting voor het groepsrisico (de kans dat een grotere groep mensen bij een dergelijk ongeval is betrokken).

In het kader van externe veiligheid is de Risicokaart Noord-Holland geraadpleegd. Op de risicokaart zijn rond het plangebied verschillende risicovolle objecten waargenomen. Het gaat om een vuurwerkopslag, een LPG-tankstation en gasleidingen. Zie onderstaande afbeelding.

afbeelding "i_NL.IMRO.0439.BPWM2010-on01_0004.jpg"

Figuur 5.1 Ligging vuurwerkopslag, LPG-tankstation en gasleidingen tov plangebied

5.1.1 Vuurwerk

De vuurwerkopslag (consumentenvuurwerk) is gelegen aan de oostzijde van de Churchilllaan aan het John F. Kennedyplein. De vergunde opslagcapaciteit consumentenvuurwerk bedraagt hier maximaal 10.000 kg. Voor de vuurwerkopslag is geen risicocontour opgenomen. Aldus vormt de vuurwerkopslag geen belemmering in het plangebied. In het plangebied worden bedrijven die meer dan 10.000 kg vuurwerk verkopen niet toegestaan.

5.1.2 LPG-tankstations

Het Besluit externe veiligheid inrichtingen (Bevi) en de Regeling externe veiligheid inrichtingen (Revi) geven de kaders voor de beoordeling van de externe veiligheidsaspecten van inrichtingen vallend onder de Wet milieubeheer. De criteria zijn gedefinieerd op basis van het plaatsgebonden risico en het groepsrisico.

Kwantitatieve risicoanalyse

In het plangebied, aan het J.F. Kennedyplein 30, ligt een tankstation waar ook LPG wordt verkocht. Vanwege deze LPG-verkoop dient er getoetst te worden aan het Bevi. In dit kader is een kwantitatieve risicoanalyse12 uitgevoerd door onderzoeksbureau DHV. Dit bestaat uit het in beeld brengen van het plaatsgebonden risico en het groepsrisico.

Plaatsgebonden risico (PR)

Het PR geeft de kans, op een bepaalde plaats, om te overlijden ten gevolge van een ongeval bij een risicovolle activiteit. De kans heeft betrekking op een fictief persoon die de hele tijd op die plaats aanwezig is. Het PR kan op de kaart van het gebied worden weergeven met zogeheten risicocontouren: lijnen die punten verbinden met eenzelfde PR.

Binnen de 10-6/jaar contour (welke als wettelijk harde norm fungeert) mogen geen nieuwe kwetsbare objecten geprojecteerd worden. Kwetsbare objecten zijn onder andere woningen (met uitzondering van verspreid liggende woningen met een dichtheid van maximaal twee per hectare en dienst- of bedrijfswoningen). De veiligheidsafstanden zijn afhankelijk van de jaarlijkse doorzet aan LPG. Voor dit tankstation is de LPG-doorzet in de milieuvergunning vastgelegd op maximaal 499 m3. Dit is de ondergrens voor de exploitatie van een LPG-station.

In de huidige situatie voldoet het tankstation aan de grenswaarde voor het PR (tabel 2a, bijlage 1 bij de Revi):

  • minimaal 25 meter tussen het vulpunt en (beperkt) kwetsbare objecten;
  • minimaal 25 meter tussen het reservoir en (beperkt) kwetsbare objecten;
  • minimaal 15 meter tussen de afleverzuil en (beperkt) kwetsbare objecten.

In het voorgenomen bestemmingsplan 'Wheermolen 2010' wordt in planologisch opzicht de huidige situatie gehandhaafd. Binnen de invloedssfeer van het LPG-station worden geen nieuwe ontwikkelingen mogelijk gemaakt en de LPG-doorzet van het station blijft gelijk.

Het Bevi en de Revi maken echter geen onderscheid in conserverende bestemmingsplannen en bestemmingsplannen die nieuwe ontwikkelingen mogelijk maken. Ook al legt een bestemmingsplan de feitelijk bestaande situatie vast, voor de toetsing van dit plan aan het Bevi en de Revi is sprake van een nieuwe situatie als bedoeld in de Revi. Derhalve dient te worden getoetst aan de afstanden in tabel 1 van bijlage 1 bij de Revi:

  • minimaal 45 meter tussen het vulpunt en (beperkt) kwetsbare objecten;
  • minimaal 25 meter tussen het reservoir en (beperkt) kwetsbare objecten;
  • minimaal 15 meter tussen de afleverzuil en (beperkt) kwetsbare objecten.

Op basis van die tabel is een vijftal woningen (kwetsbare objecten) gelegen binnen 45 meter vanaf het vulpunt. Het LPG-station voldoet met een nieuw bestemmingsplan niet meer aan de grenswaarde voor het plaatsgebonden risico.

In dit kader is echter het volgende van belang. In 2005 is tussen het voormalige Ministerie van VROM en de LPG-branche een Convenant LPG-autogas getekend. In dit convenant zijn verschillende maatregelen opgenomen, zoals het aanbrengen van hittewerende coating op LPG-tankwagens (levert tijdwinst op voor ontruimingsmaatregelen en brandweerinzet) en het toepassen van verbeterde vulslangen op de LPG-tankwagens (met een kleinere kans op lekkage en breuk). De afspraken in de LPG-sector zijn in 2010 afgerond. Naar aanleiding hiervan zal naar verwachting binnen maximaal drie jaar het Besluit LPG-tankstations worden aangepast. Na die aanpassingen komen de afstanden uit tabel 1 van de Revi te vervallen. Door de verbeterde veiligheid kunnen de afstanden uit tabel 2a van de Revi voor alle situaties gaan gelden.

Het voormalig Ministerie van VROM adviseert bij de vaststelling van conserverende bestemmingsplannen met bestaande kwetsbare objecten binnen de PR 10-6contour, onder verwijzing naar artikel 2, vijfde lid van de Revi, vooruit te lopen op de nieuwe (wettelijke) afstanden en de bestaande situatie positief te bestemmen, mits de afstanden tussen het LPG-vulpunt en een kwetsbaar object groter zijn dan de veiligheidsafstanden uit tabel 2a van de Revi voor bestaande situaties13. De gemeente volgt deze lijn, mede gelet op het feit dat de betreffende exploitant zich reeds heeft geconformeerd aan het convenant en de maatregelen zoals die in het convenant zijn opgenomen heeft doorgevoerd in zijn bedrijfsvoering. Bovendien zal in de omgevingsvergunning voor de activiteit milieu een voorschrift worden opgenomen dat het bevoorraden van LPG alleen mag geschieden met een tankwagen die is voorzien van een hittewerende bekleding.

Groepsrisico (GR)

Het groepsrisico (GR) is een maat voor de kans dat bij een ongeval een groep slachtoffers valt met een bepaalde omvang. Het GR is daarmee een maat voor de maatschappelijke ontwrichting bij een calamiteit. Het GR wordt bepaald binnen het invloedsgebied van een risicovolle activiteit. Voor een LPG-tankstation is het invloedsgebied in de Revi vastgelegd als een cirkel met een straal van 150 meter rondom het vulpunt en de opslagtank (ondergronds reservoir).

Het ijkpunt voor het groepsrisico wordt aangeduid als oriëntatiewaarde. Het Bevi vermeldt dat het GR moet worden getoetst aan de oriëntatiewaarde en dat door het bevoegd gezag een verantwoording ten aanzien van de acceptatie van het berekende GR moet worden opgesteld, ook als de oriëntatiewaarde niet overschreden wordt.

Uit de kwantitatieve risicoanalyse blijkt dat het GR de oriëntatiewaarde niet overschrijdt indien de tankwagen is voorzien van hittewerende bekleding. De gemeenteraad heeft het groepsrisico verantwoord. Hierover heeft formeel overleg plaatsgevonden met de lokale en regionale brandweer14. De verantwoording van het GR15 is als separate bijlage bij het bestemmingsplan gevoegd.

5.1.3 Besluit externe veiligheid inrichtingen

In (de omgeving van) het plangebied zijn verder geen bedrijven gelegen die van invloed zijn op de externe veiligheid in het plangebied.

5.1.4 Verkeerswegen

Uit de "Verkenning relatie milieu en verkeer binnen de provincie Noord-Holland (2000)" blijkt dat langs verkeerswegen geen aandachtslocaties met een plaatsgebonden risico van 10–6 zijn vastgesteld. De oriënterende waarde voor het groepsrisico wordt daarnaast ook niet overschreden. De Risicoatlas van provincie Noord-Holland (www.risicokaart.nl) bevestigt dit.

5.1.5 Spoorwegen

Uit de "Verkenning relatie milieu en verkeer binnen de provincie Noord-Holland (2000)" blijkt dat langs de spoorweg Amsterdam-Hoorn geen aandachtslocaties met een plaatsgebonden risico van 10-6 zijn vastgesteld. De oriënterende waarde voor het groepsrisico wordt daarnaast ook niet overschreden. De Risicoatlas van provincie Noord-Holland (www.risicokaart.nl) bevestigt dit.

5.1.6 Vervoer van gevaarlijke stoffen door transportleidingen

Het Besluit externe veiligheid buisleidingen (Bevb) en de bijbehorende Regeling externe veiligheid buisleidingen (Revb) zijn op 1 januari 2011 in werking getreden. Het Bevb regelt onder andere welke veiligheidsafstanden moeten worden aangehouden rond buisleidingen met gevaarlijke stoffen. De normstelling is in lijn met het Besluit externe veiligheid inrichtingen (Bevi), dat op 27 oktober 2004 in werking is getreden.

Voor ruimtelijke plannen in de omgeving van leidingen met een externe veiligheidscontour is het Bevb van toepassing. Op grond van dit besluit dienen plannen te worden getoetst aan de grens- en richtwaarde voor het plaatsgebonden risico (PR) en de oriëntatiewaarde voor het groepsrisico (GR). Voor het PR geldt dat er binnen de risicocontour van 10-6 geen kwetsbare objecten mogen worden gerealiseerd. Voor beperkt kwetsbare objecten geldt deze waarde als een richtwaarde. Voor het GR geldt, indien er kwetsbare of beperkt kwetsbare objecten binnen het invloedsgebied liggen, een verantwoordingsplicht voor het bevoegd gezag.

Kwantitatieve risicoanalyse

Op basis van het Bevb moeten alle planologisch relevante leidingen (inclusief gereserveerde ruimte voor buisleidingen) in (en nabij) het plangebied worden geïnventariseerd.

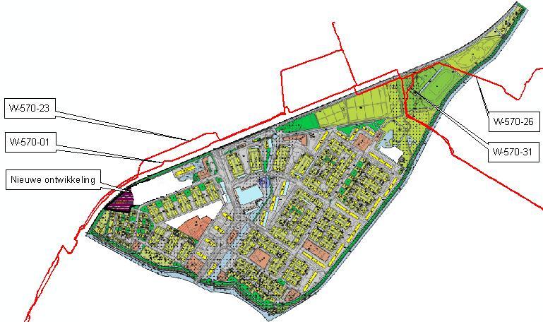
Door (en in de omgeving van) het onderhavige plangebied lopen enkele hogedruk aardgastransportleidingen (zie figuur 5.2). Alle vier de leidingen vallen onder de werking van het Bevb.

afbeelding "i_NL.IMRO.0439.BPWM2010-on01_0005.jpg"

Leiding   Diameter in mm   Diameter in inch   Druk in bar  
W-570-01   168,3   6   40  
W-570-31   219,1   8   40  
W-570-23   323,9   12   40  
W-570-26   219,1   8   40  

Figuur 5.2 Ligging hoge druk aardgastransportleidingen

De aardgastransportleidingen W-570-01 en W-570-23 liggen ten noorden van het plangebied, op minimaal ca 30 respectievelijk 20 meter van de geplande bebouwing. De aardgastransportleidingen W-570-26 en W-570-31 liggen in het noordoosten van het plangebied, op minimaal ca. 1000 meter van de geplande bebouwing.

In opdracht van de gemeente Purmerend heeft onderzoeksbureau DHV in een onderzoek16 de risico's van deze aardgastransportleidingen in kaart gebracht en getoetst aan de geldende normen. Voor alle vier de aardgastransportleidingen is het PR lager dan 10-6 per jaar. Het bestemmingsplan voldoet derhalve aan de grenswaarde voor het PR.

Voor alle vier de leidingen is het berekende groepsrisico kleiner dan 0,1 maal de oriëntatiewaarde. Realisatie van de plannen in Wheermolen-West laten in de berekeningen geen aantoonbare toename van het groepsrisico zien. Gelet op het vorenstaande kan er worden volstaan met een beperkte afweging van het groepsrisico. Hierover heeft formeel overleg plaatsgevonden met de lokale en regionale brandweer17 . De raad heeft het GR met betrekking tot de hogedruk aardgastransportleidingen in (de nabijheid van) het plangebied verantwoord. De verantwoording van het groepsrisico18 van de vier buisleidingen is als een separate bijlage bij dit bestemmingsplan gevoegd.

In verband met de bescherming en het beheer van de leidingen, wordt tevens een belemmeringenstrook van 4 meter aan weerszijden bestemd. Binnen deze strook is in beginsel geen bebouwing toegestaan.